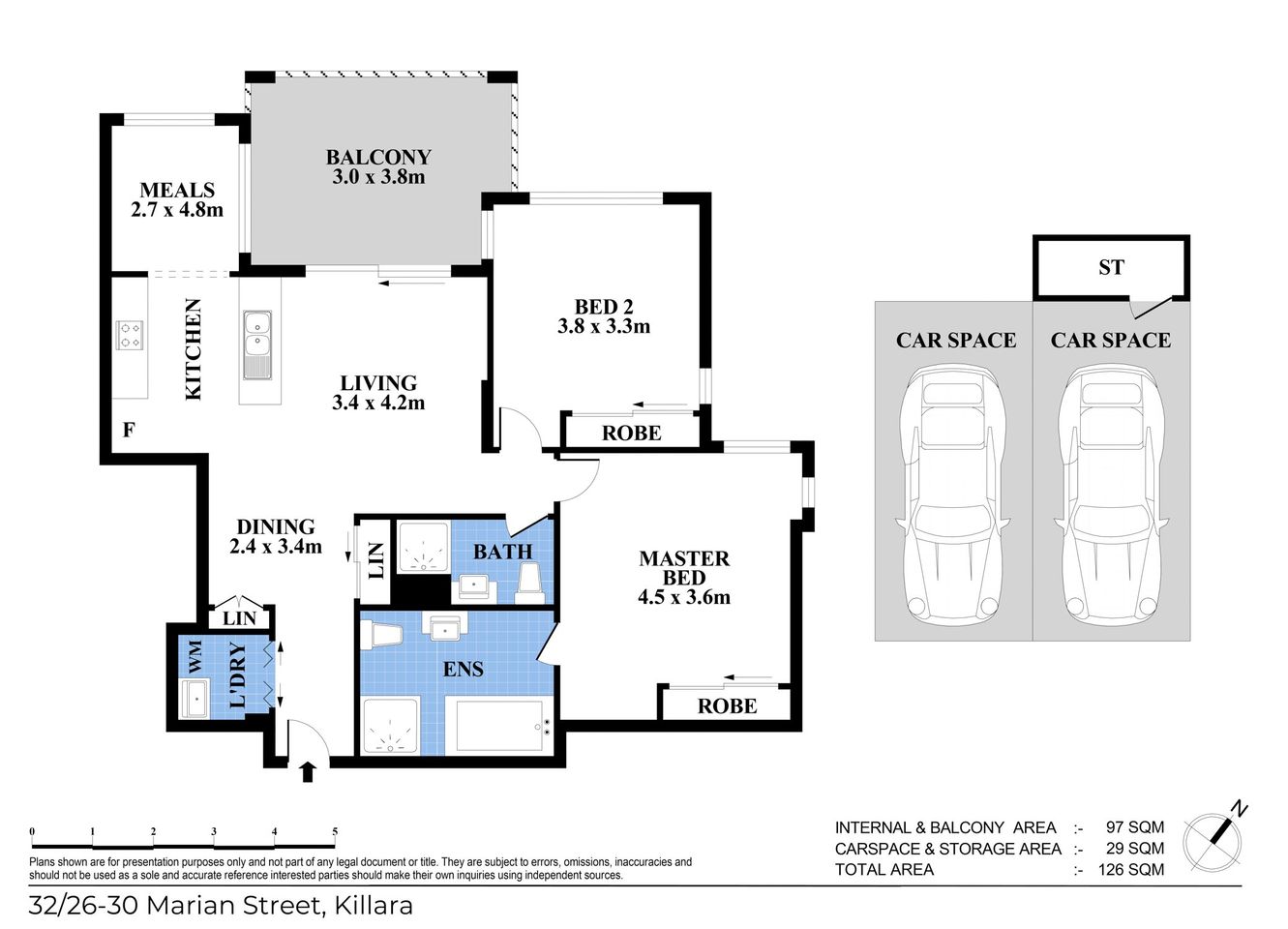
Due north facing, substantial and superbly designed, this over-sized apartment enjoys an elevated position in the quality security block and promises an outstanding lifestyle on Killara's premier east-side. The residence is well built, with a full brick construction, generous proportions and smart contemporary finishes. The floor plan promotes easy inside to out living and includes a home office and generous master retreat with an ensuite. Ducted a/c ensures everyday comfort plus it comes with lift access to its side by-side security parking and storage cage. The location is footsteps to the bus, Killara Station, parks, Ravenswood and Gordon village and in the Killara High School catchment.
- Well-maintained security block with level lift access and gardens
- Bright interiors with high ceilings, spacious living and dining
- Ducted a/c, gas appointed stone wrapped kitchen with an island
- Home office, generous north facing balcony, modern bathrooms
- Two spacious bedrooms, robes, master with an ensuite, laundry
- Side-by-side parking, storage cage, Killara Public School catchment
32/26-30 Marian Street Killara




















