A fabulous opportunity to acquire a vast level parcel of land across numbers 46 and 46A Woodlands Road with north to rear aspect dwellings (a three bedroom full brick home and three bedroom granny flat).  Free of heritage constraints, perfect to knockdown and rebuild to your own style and specifications (stca). Both properties can be individually leased. 
Considered one of the area's premier streets showcasing a blend of original homes and grander new residences and enjoying excellent transport including express bus to the City and zoning for popular Lindfield East Public School and coveted Killara High School. 
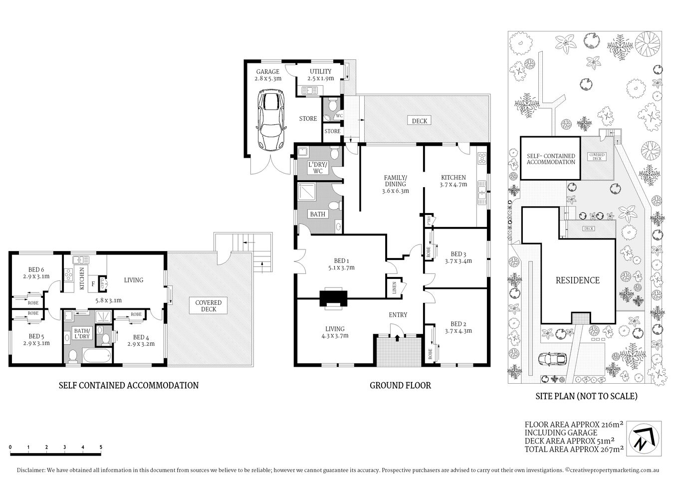
Main Dwelling: 
- 1214sqm parcel of level north to rear land with 22.86m street frontage 
- Full brick single level character home, high detailed ceilings and timber floors 
- Traditional lounge, family room/dining with large north facing windows  
- Large eat in kitchen, extra wide gas range with oven, dishwasher 
- Three bedrooms, master with ensuite/two-way bathroom 
- Internal laundry with wc, garden powder room and utility room 
- North oriented deck, single garage, storage, additional on-site parking 
Second Dwelling: 
- Separate granny flat (46A), vast covered deck, leafy setting, air con 
- Living room and full kitchen with gas cooktop, oven and breakfast bar 
- Three bedrooms with built in robes, main with a powder room 
- Full bathroom with bath and separate shower, internal laundry 
46 Woodlands Road East Lindfield




















