NOTE: Please enter via 12 Mitchell Road, Mosman
Retaining many of the hallmarks of its classic heritage, this immaculate home is a warm and inviting haven of charm and beauty with expansive district views. It enjoys an elevated setting on a dual access block, moments to Mosman Village and city transport. Don't miss your chance to build your dream home and enjoy the incredible lifestyle on offer in this location.
- DA approved for an additional level with water views and double lock up garage
- Dual access with level entry via Mitchell Road
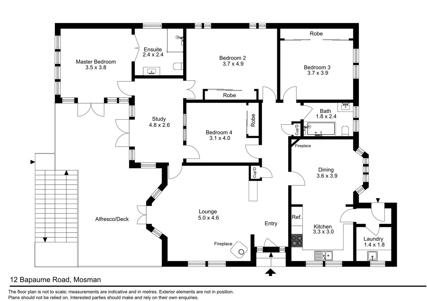
- Level layout with elegant lounge and separate dining area
- Flow to large entertainers' deck with far reaching views
- Well-appointed modern kitchen includes stainless gas cooktop
- Four generously sized bedrooms, one has an ensuite
- Stylish renovated main bathroom plus handy sunroom/study
- Includes high ornate ceilings, timber floors and plate rails
- Cosy combustion fire, built-in wardrobes and internal laundry
- Solid double brick construction with sand stone base
- Enjoy access to public transport just moments away, Bridgepoint, Mosman village shops and Stockland's
- Situated within the Beauty Point Public School Catchment just a mere 10-minute walk
- Additionally easy access is Chinamans Beach, Balmoral Beach and the Spit
This property is scheduled to go to Auction onsite. Registered bidders will be given priority to attend the auction before spectators due to potential social distancing requirements. If you intend on registering, please contact the agent to discuss proceedings.
This property is available for viewing by either attending the scheduled open homes or by private viewing should this be your preference. All necessary measures have been put in place to adhere to the recent Government regulation and to protect the health and safety of all parties. For more information please contact the listing agent.
12 Bapaume Road Mosman




















