First time offered in nearly 30 years, this two-storey double brick family home is ready to move in and enjoy, or further improve to make it your own. Located in the leafy enclave of St Ives, it's whisper quiet location is only minutes to the City Express bus as well as local private and public schools.
All living areas and bedrooms overlook the treescape and enjoy abundant light with stunning views over Garigal National Park. An expansive paved courtyard provides for alfresco dining and weekend BBQs with family and friends. With a sparkling inground pool, this is a once in a lifetime opportunity to make this home your own. This home is perfect for a family seeking a great location, access to Sydney's best schools and a chance to enjoy the beautiful Cascades bushwalk experience, with work life family balance that can be yours.
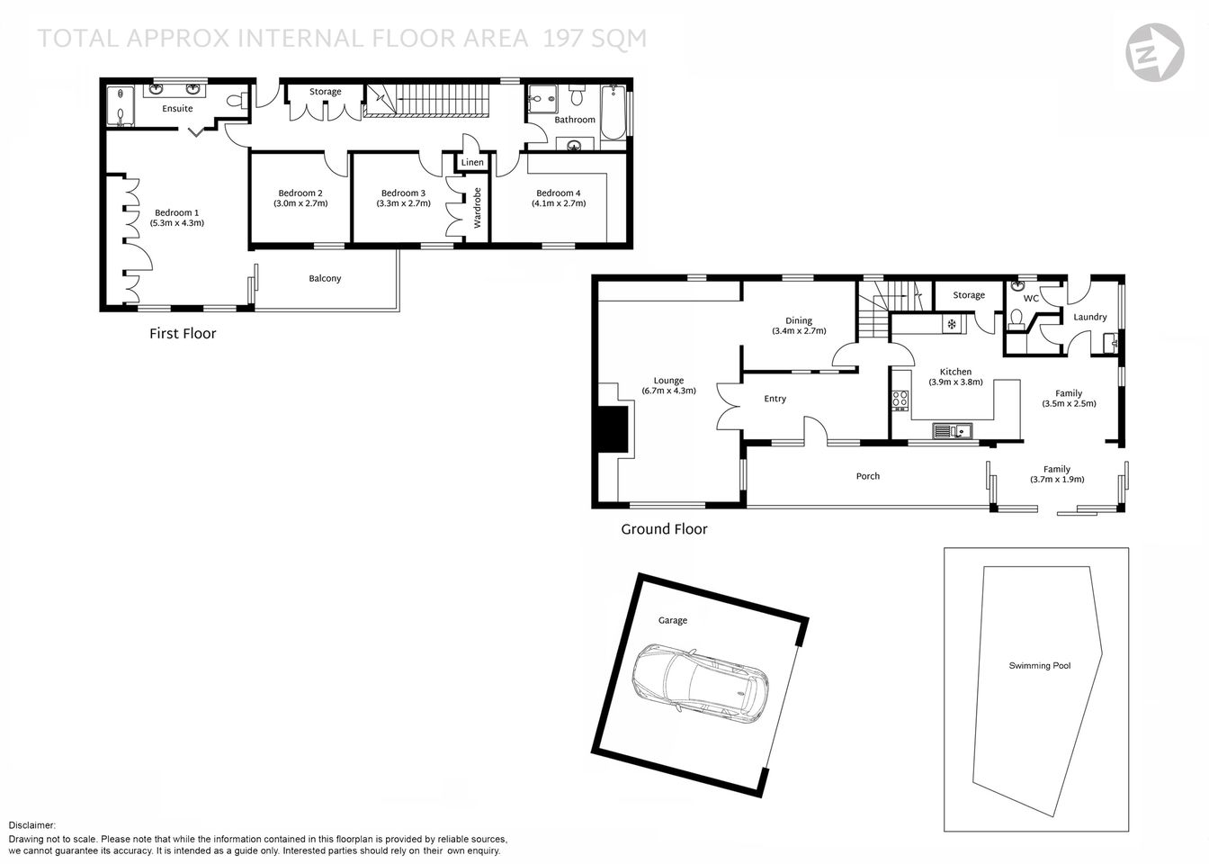
- 4 bedrooms, master with built in robe and ensuite
- Built Ins in a further 2 bedrooms, 3 bathrooms
- Kitchen with original appliances, conservatory style meals area
- Separate lounge and dining room, built in cabinetry, two fireplaces
- Low maintenance landscaped gardens and pool safety fencing
- Catchment for St Ives Park Public School and St Ives High School
- Bus stop approx. 10min walk for CBD and school commutes
67 Cambourne Avenue St Ives


















