Stunning, light-filled architecturally designed home. Holiday at home all year round!
Magnificent outlook with convenient location. Generous bedrooms, brilliant storage, perfect teenagers retreat .
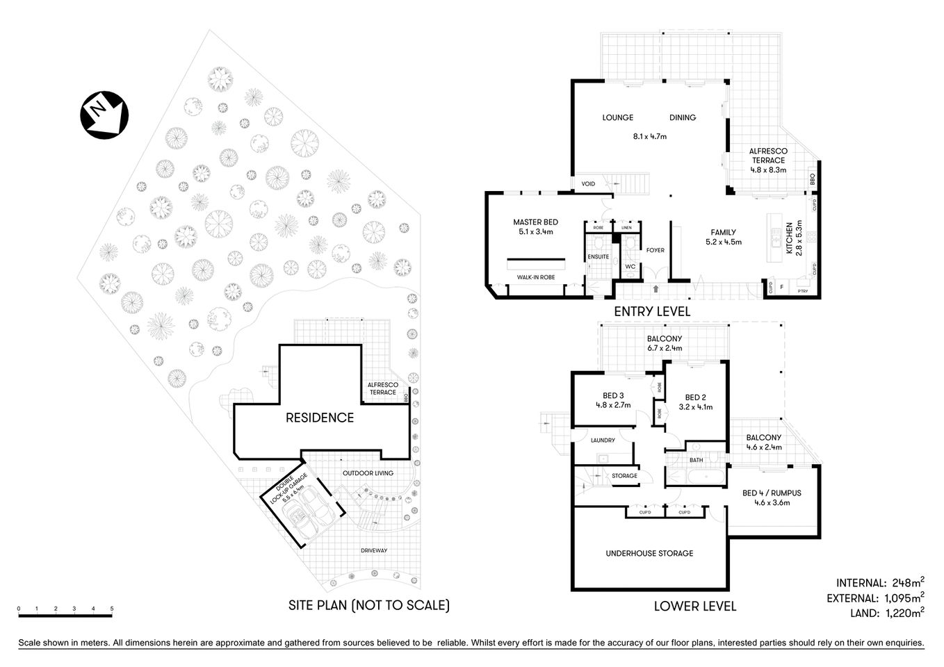
Promising a tranquil bushland setting that encourages a slower pace of living, this immaculate dual level home embraces its surroundings with wonderful natural light and floor-to-ceiling windows that capture the outlook.
Interiors showcase enviable outdoor connection, with effortless flow to a superb wraparound terrace where the serenity of Lane Cove National Park can be enjoyed.
The property is set at the end of a quiet cul-de-sac, moments to buses, schools, Turramurra station and Macquarie Centre.
- Fantastic vaulted ceiling with high set windows creates ideal sense of space
- Vast living zone with bi-folds to courtyard and flow to wraparound terrace
- Stone-top island kitchen includes dishwasher and Miele electric appliances
- Two bedrooms have balcony access. Master offers ensuite and walk-through robe
- Versatile rumpus with private balcony makes a perfect teenager retreat
This property is available for private viewing, and may also advertise an open time. All necessary measures have been put in place to adhere to the recent Government regulation and to protect the health and safety of all parties. For more information please contact the listing agent.
42 Ashburton Avenue Turramurra















