Embracing a leafy bush outlook, this highly acclaimed Pettit & Sevitt design located on a 1,556sqm parcel of land that is secluded from the street. It's immaculately presented and ready to enjoy, designed with a split level layout creating multiple living zones for the whole family. This property is enviably located in a quiet no through road, within a short walk of the SAN Hospital and Wahroonga Adventist School. It's a stroll to buses to rail, Fox Valley Village shops and cafés as well as in the catchment for Warrawee Public School.
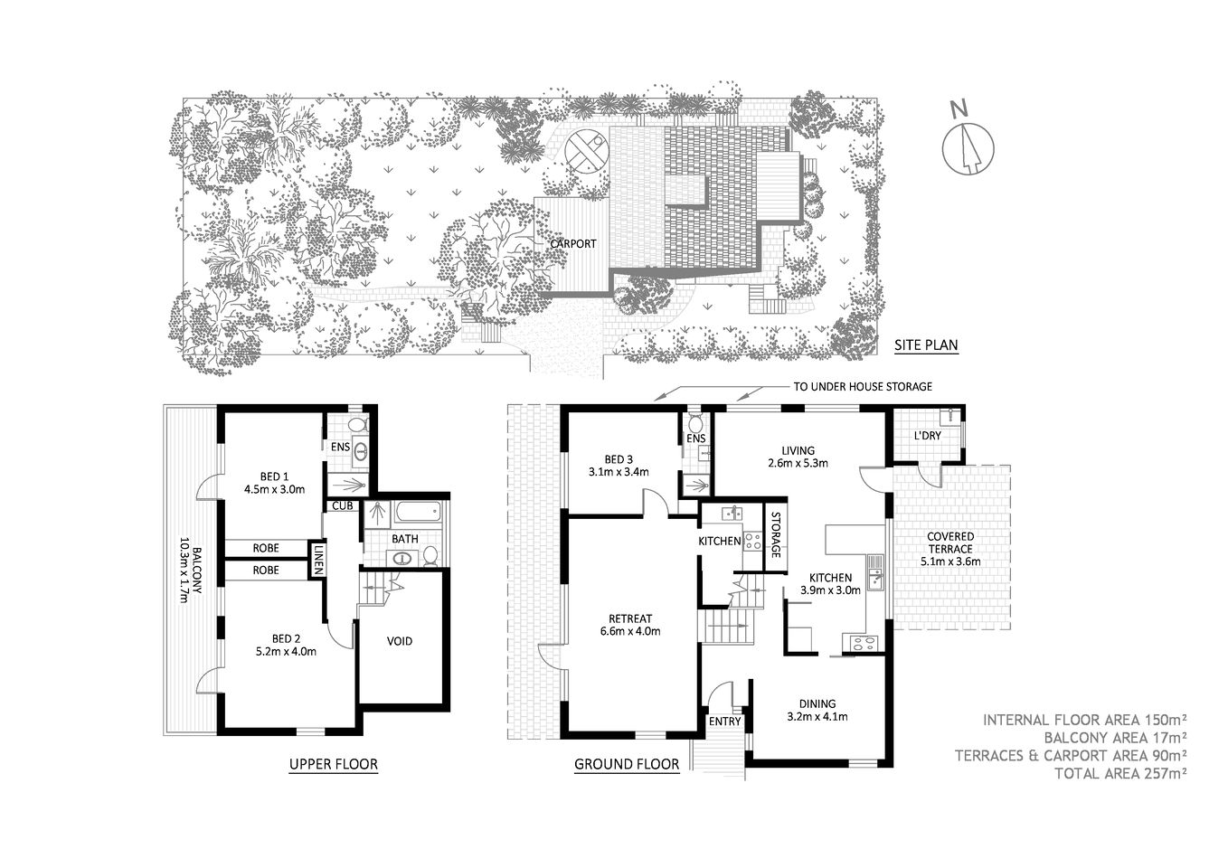
- Interiors present high vaulted ceilings over separate living and dining
- Versatile lower level living with wet bar may suit use as a teenage retreat
- Private backyard with covered alfresco entertaining and established gardens
- Stone kitchen featuring stainless steel gas appliances and timber cabinetry
- Three bedrooms, two ensuite, full main bathroom, split air conditioning
- Oversized double carport, 9,000L rainwater tank, underhouse storage space
- Close proximity to Abbottsleigh and Knox Grammar
89 Browns Road Wahroonga
















