






Unit 21/240 Ben Boyd Road, Cremorne
ApartmentDeposit Taken
1
Bath1
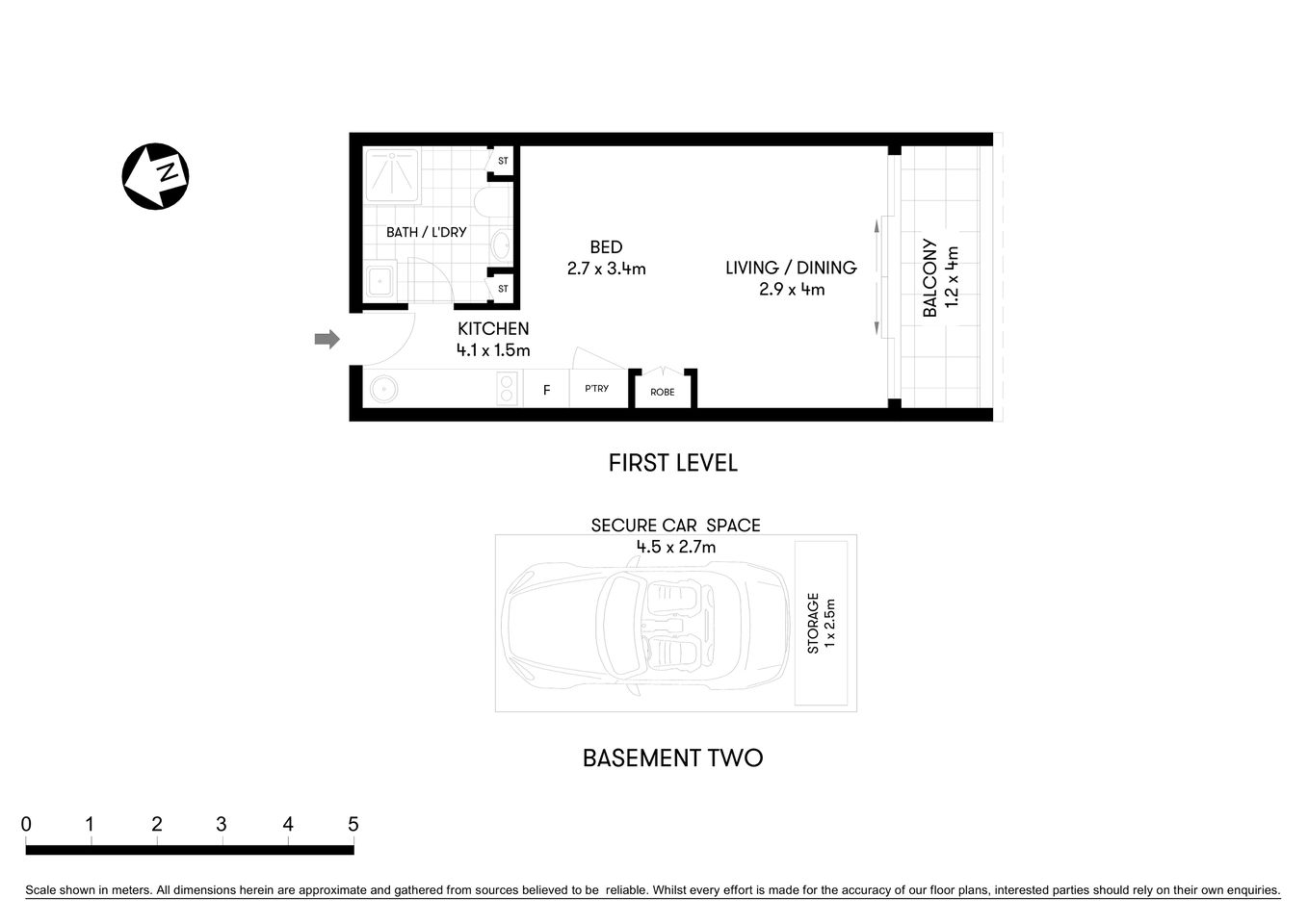
CarsPerfectly set in the exclusive 'Andean' apartment complex, with its manicured leafy garden setting, this studio apartment makes the most of this exceptional locale. Only moments to Neutral Bay village shopping, cafes, and rapid express city buses.
- Light filled studio apartment, 2.5-metre-high walls, expansive windows
- Galley style granite kitchen, gas cooking, rangehood, ample storage
- Modern fully tiled bathroom with internal laundry including dryer
- Tiled and covered balcony runs full width of the apartment
- New flooring with ample storage throughout unit
- Large security basement parking with storage unit, visitor parking
- Level access to the street and parking, building has updated Lift
- Complex features tranquil landscaped gardens with BBQ facilities
- close Proximity to Neutral Bay shopping precinct with cafés, restaurants
- Walk to Cammeray Golf Course, parks and harbour foreshore walks
Interested in this property?
Unit 21/240 Ben Boyd Road Cremorne



