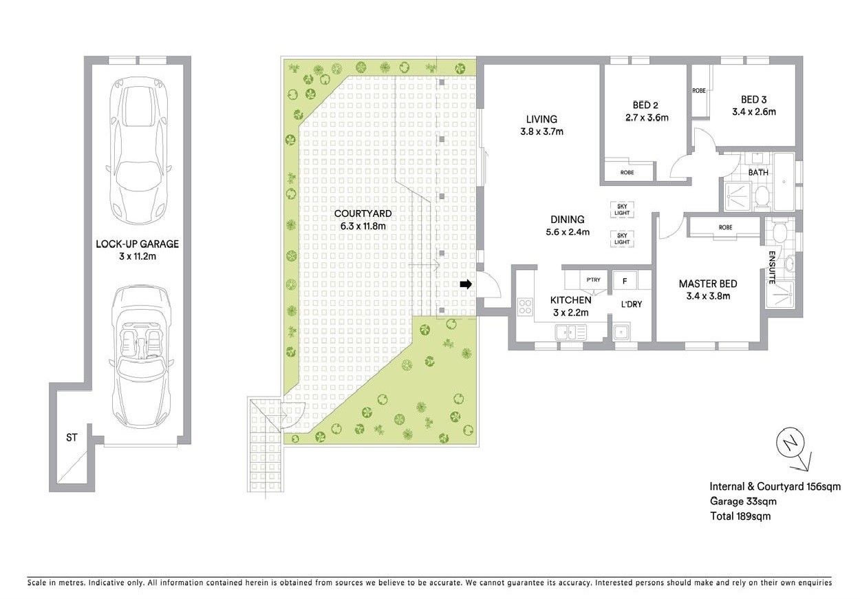
This modern villa complements spacious design with a generous alfresco entertaining space. It's nestled peacefully middle of the complex, setting opposite Waterloo Parkland, only steps from Macquarie University, bus transport and local cafés.
- Oversized lounge/dining zone ensures comfortable downtime
- Flow onto a paved court garden encircled by serene greenery
- Neatly presented segregated kitchen with ample pantry space
- Accommodation comprises three bedrooms, master has ensuite
- Separate bathtub and shower in wonderfully kept main bathroom
- Air conditioning, internal laundry room, soaring ceilings
- Private and direct entrance to rear of small leafy complex
- Internal access to tandem double lock-up garage
- Convenient to Eastwood, walk to Macquarie Shopping Centre, Macquarie University, Woolworths, City buses and Metro Station
- Kent Road Primary, Epping Boys High School, Ryde Secondary College and St Anthony's Primary
In the interest of protecting our tenants against leaking of any personal data, please only pay your holding deposit to our agency upon receiving approval from DiJONES Real Estate. You will then receive a remittance, in the form of a trust account receipt, from DiJONES to confirm receipt of your deposit.
10/152 Culloden Road Marsfield












