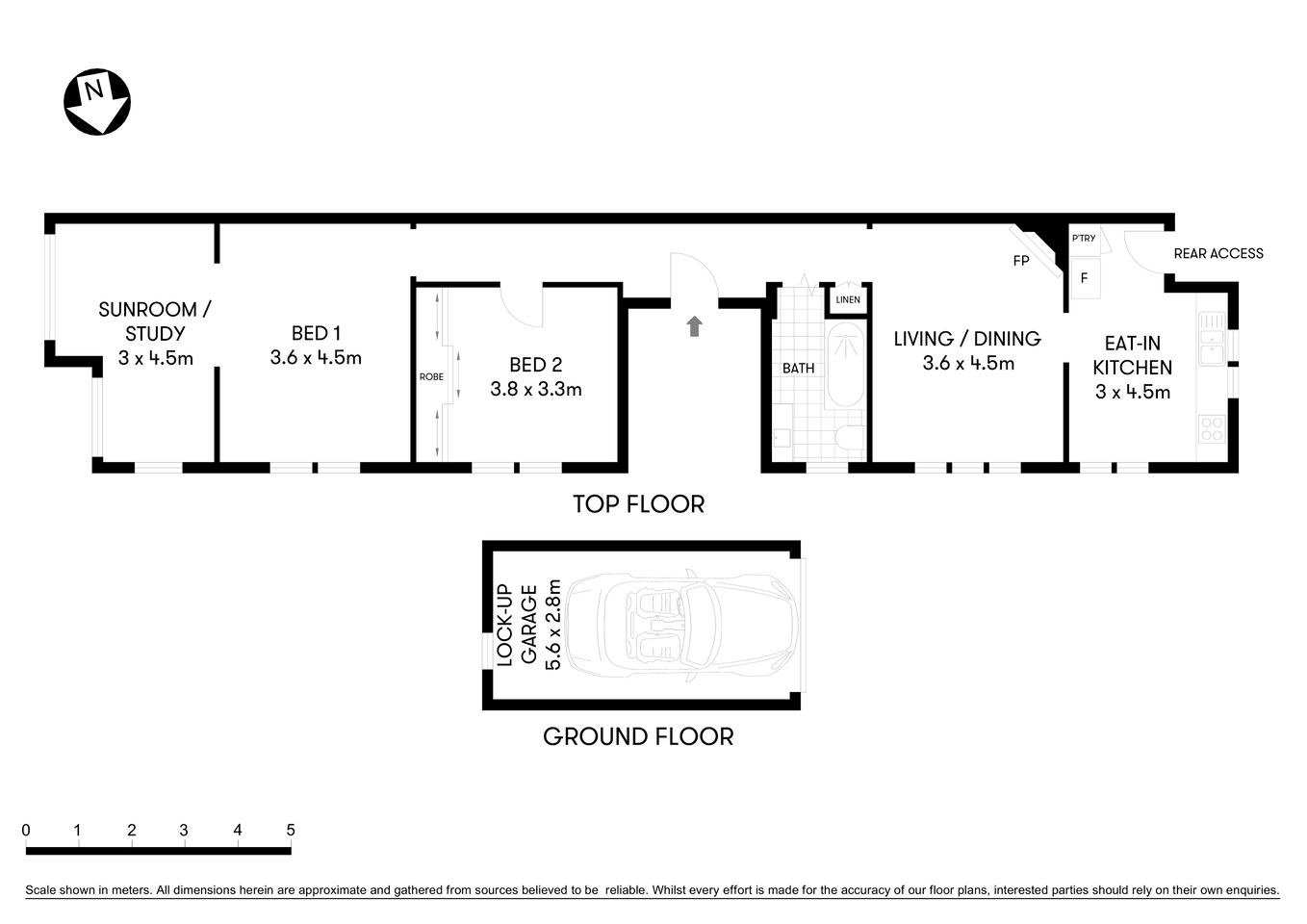
Set in an absolute premier position, boasting spectacular panoramic views that gaze over Balmoral Beach to North Head in one of Sydney's most iconic suburbs, this property is perfect for someone looking for space and convenience Taking pride of place on the top floor of a tightly held block of only six, it's set on the north-east corner and features an oversized layout offering just under 100sqm of living space plus an invaluable lock-up garage. Mosman Village and Balmoral Beach all within a short walking distance.
- "Willeroo", a beautiful ArtDeco, boutique apartment block of only six
- Breathtaking harbour views and a sunny NE aspect
- Two large bedrooms plus a sunroom/study
- Designer eat-in gas kitchen, quality appliances
- Stylish living room, ornate ceilings, oversized windows
- Tastefully updated bathroom, bath, heated towel rails
- Lock-up garage
- Short stroll to Mosman Village, Balmoral Beach, boating clubs and harbour parks
This property is available for private viewing, and may also advertise an open time. All necessary measures have been put in place to adhere to the recent Government regulation and to protect the health and safety of all parties. For more information please contact the listing agent.
5/13 Moruben Road Mosman














