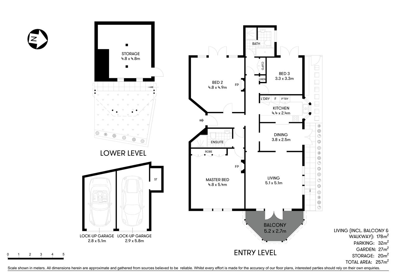
Set amidst gorgeous garden surrounds, rarely does an apartment invoke such a sense of grandeur as this beautiful ground floor 'Gundimaine House' residence. Once part of a stately c1903 Federation Queen Anne home, it now forms one of four heritage listed apartments within the exclusive property. Instantly impressive interiors showcase endless charm and house-like proportions across 178sqm of internal living space, culminating in a stunning fairy tale balcony to take in the glistening harbour views.
Enclosed mature common gardens, secure building entry past cathedral doors
Separate dining area, vast living zone enjoys balcony flow via French doors
Modern kitchen has gas cooktop, integrated fridge/freezer, servery to dining
Three large bedrooms, ensuite to master, main bathroom with shower and tub
High ceilings, 27sqm on title garden, ample storage, double garage via rear
Walk to Kurraba Point Wharf, Maccallum Seawater Pool, and near village shops
2/39 Shellcove Road NEUTRAL BAY
















