Located in Lindsay Terrace this generously proportioned apartment is set in a boutique, low rise block of just 18. Complete with an appealing indoor/outdoor flow to a private hedge surrounded courtyard and boasting 102sqm of living area, its interiors are comfortable whilst offer exceptional scope to enhance and add value if required.
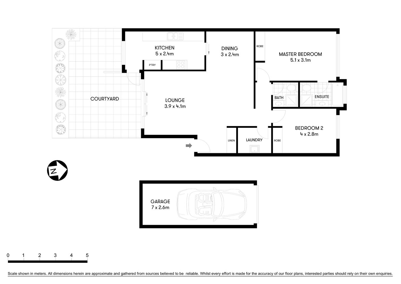
Features includes a large L- shaped lounge and large dining area complete with timber floorboards. The sweeping living spaces connect out to a spacious peaceful and private entertainers' courtyard – ideal for Sunday BBQ's and entertaining friends/children.
The galley style kitchen is generous in size coming complete with Caesar stone benchtops, double oven, glass splashbacks, plenty of storage space and dine in breakfast area as well as direct access to the courtyard.
Set just moments from Neutral Bay shopping precinct, parks and public transport. It is supremely quiet with little passing traffic, whilst offering easy access to Sydney and North Sydney CBD (express bus), level walking distance to shops, cafés and restaurants and not to mention, moments to the iconic Oaks Hotel. Also situated in the catchment area for Neutral Bay public school along with close proximity and easy access to leading private schools. This opportunity is ideal for investors, downsizers, young families and executives, combining an easy low -maintenance lifestyle with the convenience of a handy location.
- King-sized master with built-in mirrored robes includes generous ensuite and bath
- Queen-sized second bedroom also with built-in mirrored robes and second bathroom
- Large separate laundry, separate linen press offers ample room for storage
- Oversized single lock up garage (19sqm) also offers additional storage and internal access from the building
- Security building with well-maintained gardens and common areas, predominately owner-occupied
This property is available for private viewing, and may also advertise an open time. All necessary measures have been put in place to adhere to the recent Government regulation and to protect the health and safety of all parties. For more information please contact the listing agent.
7/4-8 Lindsay Street Neutral Bay














