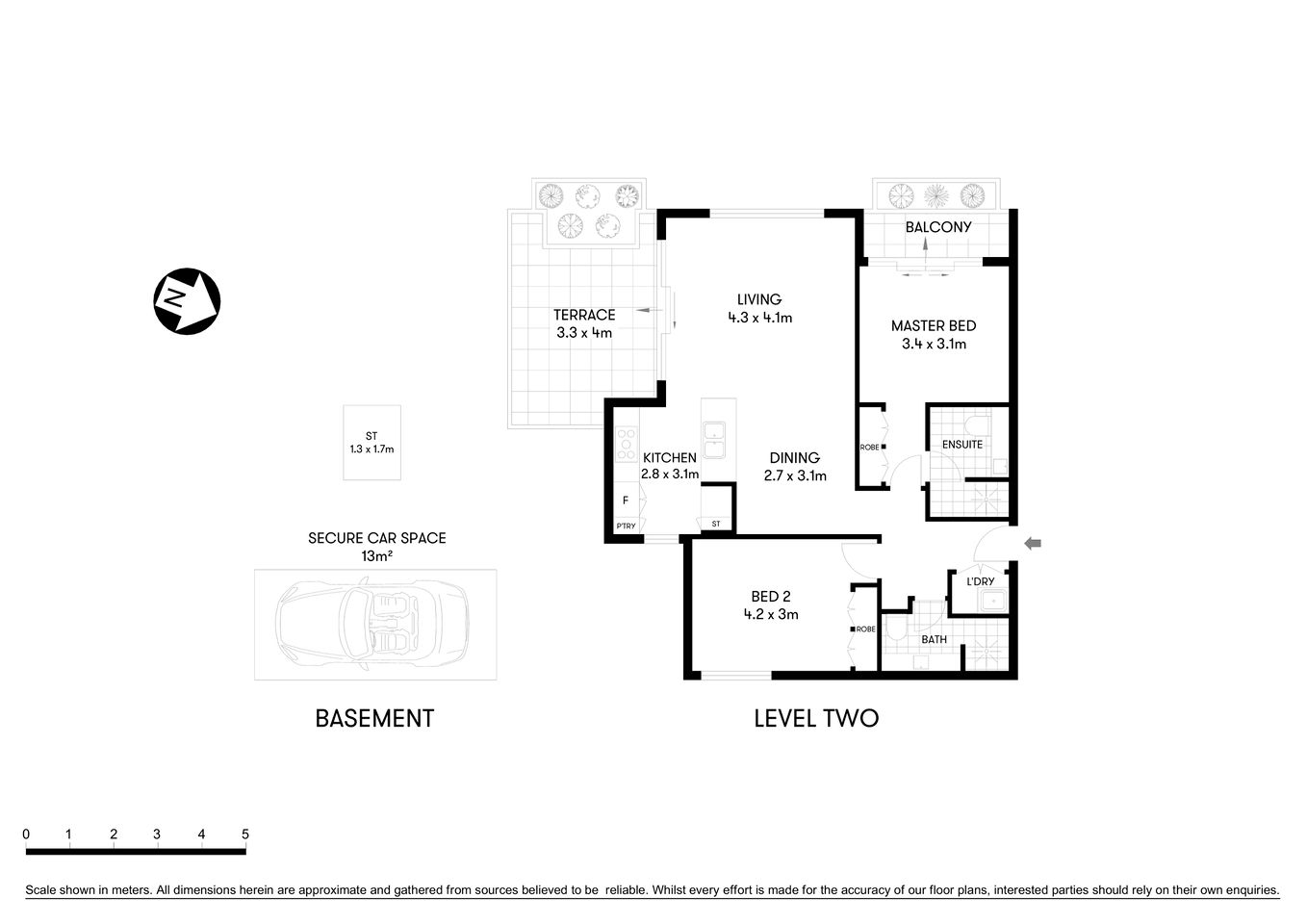
Capturing a serene leafy outlook and tantalising far-reaching district views, this brand new second floor apartment is a masterpiece of sophisticated luxury, peace and privacy. Spacious Coco Republic designer finishes are testament to the quality on display, accentuated by ideal natural light and enviable outdoor flow. The property is set in a boutique block of 12 and is destined to appeal to a range of buyers with its walk-to-everything convenience, including trains, shops, cafés and dining.
- Gorgeous open living/dining zone with picture window to capture the outlook
- Glass sliding doors give way to open pergola terrace with easycare garden bed
- Deluxe modern kitchen complete with integrated fridge/freezer, Miele cooktop
- Built-in robes to both bedrooms, master extends to a private balcony retreat
- Sleek master ensuite, large fully tiled main bathroom features a rain shower
- Ducted air conditioning, timber flooring, intercom, basement parking/storage
This property is available for private viewing, and may also advertise an open time. All necessary measures have been put in place to adhere to the recent Government regulation and to protect the health and safety of all parties. For more information please contact the listing agent.
205/9-11 Doohat Avenue North Sydney
















