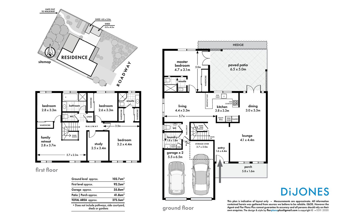
Located in a peaceful, established neighbourhood with rear, gated access to the popular Bowral bike and walking track, this five-bedroom, double-storey family residence is in a whisper-quiet pocket of Bowral, set amongst other beautifully maintained homes.
There's plenty of room here for a growing family's needs.
Three separate upstairs/downstairs lounge areas will accommodate everyone in comfort. Of the five bedrooms, the fifth is currently used as a bright study, and are all linked by a central timber stairwell. The downstairs master has French door access to the rear terrace – a very private retreat, while the rest of the family claims upstairs.
A neat, renovated kitchen has Caesarstone benchtops, Smeg gas cooking and electric oven, brilliant pull-out pantry, lazy susans in cupboards to increase available space, dishwasher and range hood. Spanish-style tiled flooring features downstairs while upstairs has low maintenance floorboards.
A huge undercover stone terrace at the rear is bordered with leafy hedges and is accessed through glass and timber French doors from the dining room and master bedroom.
A pretty paved path goes down to the rear garden and fully fenced puppy yard. Plenty of shed storage, plus approximately 15,000 litres of rainwater storage for the garden and 22 solar panels with 2kW 'N' phase battery.
Perfect to live in right now but ready to accommodate an added designer touch.
- Walking and bike track at the rear takes you straight into Bowral
- Centrally heated and airconditioned throughout with additional gas points
- Upstairs living plus formal lounge and family room downstairs
- Five bedrooms, three bathrooms including two ensuites, four toilets
- Fabulous, large sheltered rear terrace
- Under-stair storage
- Three TV connections, NBN
- Double, remote-controlled-door garage
- Level, internal access from garage
- Internal laundry
- Pretty established native garden and fencing
This property is available for private viewing, and may also advertise an open time. All necessary measures have been put in place to adhere to the recent Government regulation and to protect the health and safety of all parties. For more information please contact the agent.
28 Westbrook Crescent Bowral























