This classic 1950s character cutie has been completely re-imagined, rebuilt and redecorated and is now ready for its next owner to move in, relax and enjoy.
North-facing and situated on a level, fully-fenced, 853 sqm block in a whisper-quiet location with established, cool-climate trees providing privacy and shade. All the hard work has been expertly done with stunning, brand new kitchen and two beautiful new bathrooms, including ensuite to the master, built-in 'robes in each bedroom and fabulous new rear timber deck spilling down to a level garden.
An ambient, remote-controlled, gas log fireplace in the living area effectively warms the whole home through clever ceiling ducts and, in summer, split-system air-conditioning cools the home beautifully.
The new kitchen looks out to the rear garden and features a fabulous large Caesarstone topped island bench, 900mm wide Omega oven and 5-burner gas cooktop, dual-drawer dishwasher and rangehood.
Timber flooring in the living spaces, plus new carpeting in all bedrooms, downlights and ornate cornices.
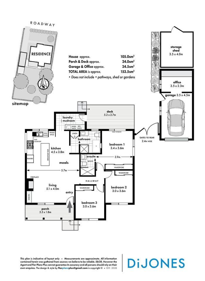
- Newly renovated and decorated
- Completely level block close to school bus route and the Bowral bike track
- Main bathroom with bath plus ensuite to main, both with underfloor heating and heated mirror
- Brand new kitchen and internal laundry
- Built-in 'robes in all three bedrooms
- Lock up garage with office space
- Garden shed
This property is available for viewing by either attending the scheduled open homes or by private viewing should this be your preference. All necessary measures have been put in place to adhere to the recent Government regulation and to protect the health and safety of all parties. For more information please contact the listing agent.
5 Retford Road Bowral



















