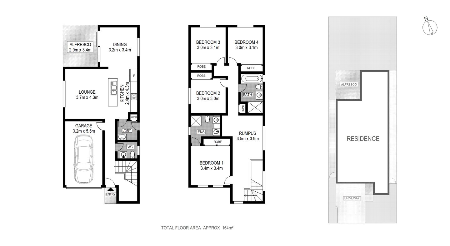
This brand new Rawson Home has been designed for ease and comfort. With quality modern fixtures and fittings throughout including a fabulous kitchen with stone benchtops, stainless steel appliances and gas cooking. Great sized rear yard with sunny north to rear aspect plus upstairs rumpus and four good sized bedrooms including a master with ensuite and walk in robe.
- Stone kitchen with stainless steel appliances and gas cooking
- Open plan living spaces and covered alfresco
- Sunny north to rear yard with plenty of green space.
- Large single garage, ducted air conditioning, water tank.
- Surrounded by an array of pubic and independent schools
- Conveniently located just a short distance to Rouse Hill Town Centre and local shops.
This property is available for private viewing, and may also advertise an open time. All necessary measures have been put in place to adhere to the recent Government regulation and to protect the health and safety of all parties. For more information please contact the listing agent.
16 Doncaster Street Box Hill














