Nestled on one of Castle Hill's highest vantage points, this striking residence has been designed to capture magnificent views stretching across the district to the Blue Mountains. Just two and a half years old, the architect designed contemporary home is set on a 932sqm block in a new estate, offering lifestyle with convenience. Just a leisurely 300m stroll to Heritage Park, the property is also less than five minutes to Castle Towers and Sydney Metro Northwest.
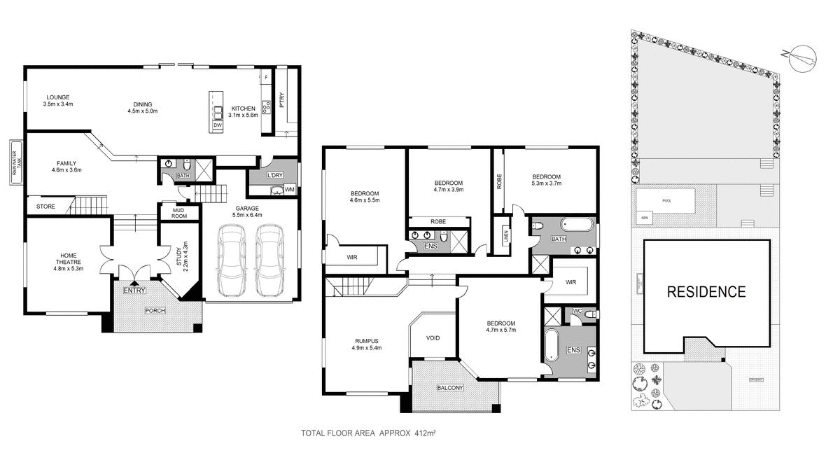
Behind the impressive facade is an expansive split-level ground floor with multiple living areas. Dark wood laminate flooring contrasts with the neutral décor; while soaring 3.3m high ceilings add to the sense of space and natural light. The free-flowing interior leads to a vast open plan lounge and dining area. Adjoining is the deluxe kitchen, featuring a beautiful granite topped island and equipped with stainless steel appliances, including an Ilve gas cooker. The space extends to a superb outdoor entertainment area with an enticing swimming pool and large spa, framed by a travertine terrace.
Wake up to the panoramic outlook from the king-sized master retreat, located on the second floor. This private haven has a walk-in wardrobe, sitting area and full-sized bathroom with large soaking tub, glass encased shower and double vanity. It has access to the glass framed upper balcony, providing yet another spot to enjoy the spectacular vista. A large rumpus is also located upstairs as well as three other generous-sized bedrooms, overlooking the landscaped tiered rear gardens.
- Formal and casual living areas providing effortless modern living
- Wide tiled front terrace opening to stunning foyer with 7m void
- Stylish home office or guest accommodation located off the entry
- Timber staircase with step lights, plus elegant hanging feature light
- Custom designed cabinets with a built-in study nook off the kitchen
- Large saltwater heated swimming pool, stone stack wall, cascading waterfall
- Fully fenced backyard with decking, retaining walls, expansive lawn, fire pit
- Luxe bathrooms with floor to ceiling tiling and granite vessel sink vanities
- Large laundry with cabinets and side access, mudroom off the garage
- Automatic double garage with storage, plus additional off-street parking
- Ducted air-conditioning with smart phone control system, roller blinds
- Zoned for nearby Castle Hill Public School and Castle Hill High School
- Less than five minutes to the popular Oakhill College and sports fields
- Easy access to Cherrybrook, Glenhaven and Round Corner shopping
This property is scheduled to go to Auction onsite. Registered bidders will be given priority to attend the auction before spectators due to potential social distancing requirements. If you intend on registering, please contact the agent to discuss proceedings.
This property is available for viewing by either attending the scheduled open homes or by private viewing should this be your preference. All necessary measures have been put in place to adhere to the recent Government regulation and to protect the health and safety of all parties. For more information please contact the listing agent.
24 Womurrung Avenue Castle Hill



























