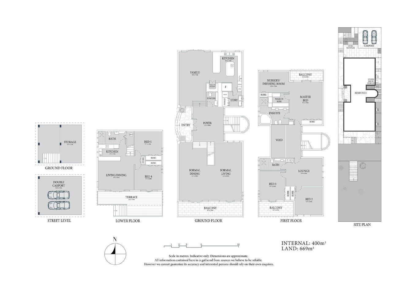
Architect designed, custom built and available for the first time, this immaculately maintained double brick residence offers refreshing flexibility and quality appointments over three generous levels. Accommodation includes optional self-contained quarters featuring independent access, while an elevated rear aspect embraces outlooks of rainforest-like surrounds to provide a lush natural backdrop. Ready-made for a large or extended family with almost 400sqm of internal floor space, it promises quiet convenience within walking distance of Chatswood CBD, the train station, and excellent schools. Just 500m to Chatswood Public School.
- Grand formal dining and living space, multiple casual lounge rooms
- Granite island kitchen with European appliances and walk-in pantry
- Downstairs guest retreat features 2 bedrooms, a full bathroom and separate open plan living / dining, perfect for the extended family or home office
- Parents' wing has generous spa ensuite, walk-in robe and oversized nursery or dressing room
- Cat5 data cabling, parquetry floors, gas heating and ducted air-conditioning
- Front north facing garden courtyard, perfect for entertaining and summer BBQs
- Lush rear garden with scope to add value, double carport plus storage space
10 Ivy Street Chatswood
























