Nestled in a breathtaking natural setting on 1192sqm of land, this captivating retreat-style home offers relaxed Byron Bay ambience coupled with the urban convenience of the North Shore. Birdsong and gently swaying treetops make you feel a million miles away in an idyllic spot where you can kayak on Lane Cove River, stroll through the national park or welcome guests for effortless entertaining in exceptional surrounds.
Open plan living areas enjoy seamless transition to outdoor spaces with glazed doors pushing back for an airy pavilion feel with wraparound alfresco areas tracking northeast sunshine throughout the day and enjoying the treetop views.
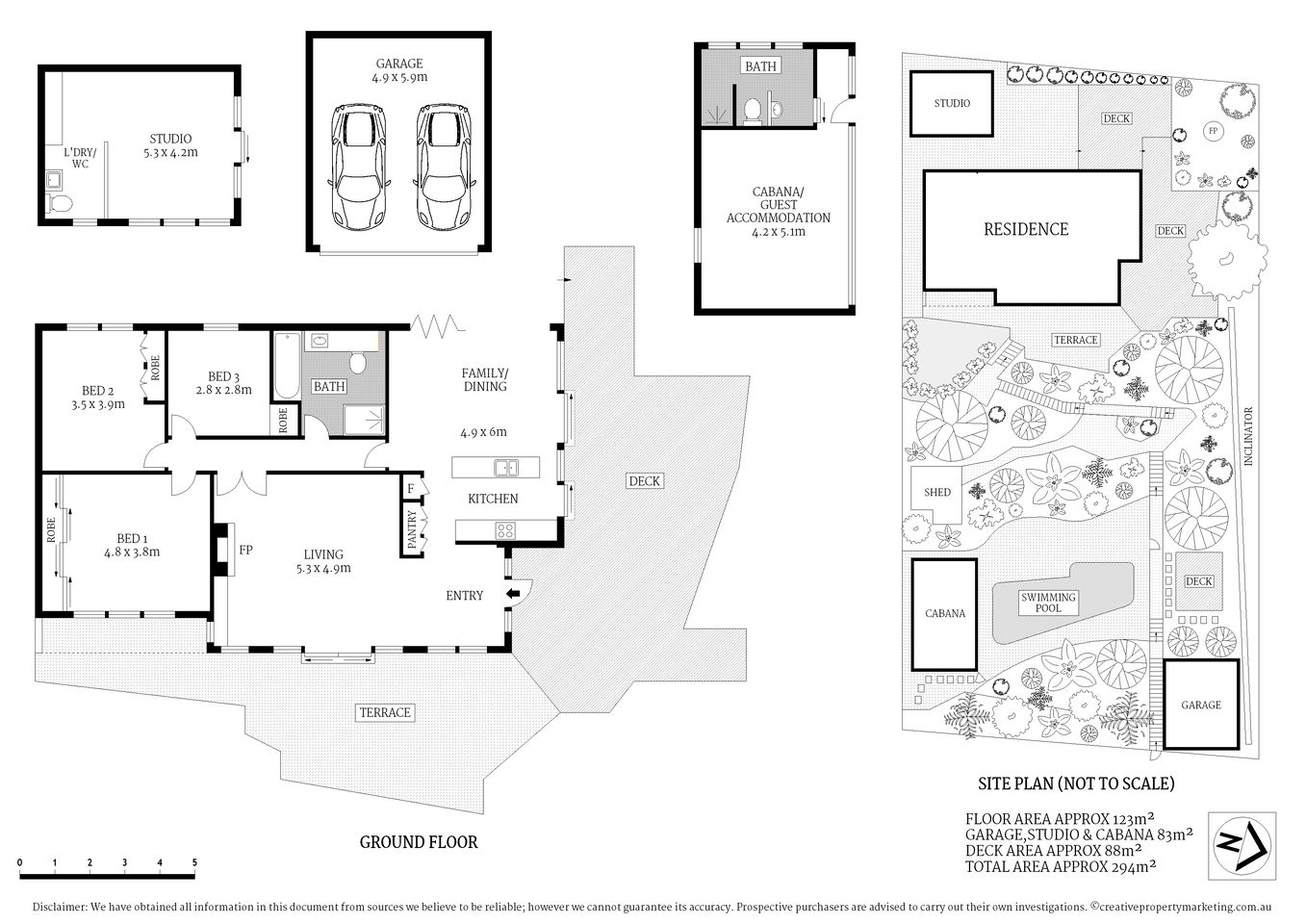
- Living and dining areas with easy in/out flow to alfresco spaces
- Lovely natural features, timber floors, decks and sandstone terrace
- Open kitchen and dining, gas cooktop, electric oven, dishwasher
- Four bedrooms, stunning marble bathroom, laundry with wc
- Fabulous poolside cabana guest accommodation with bed and bath
- Resort-sized pool with a wicked deep end and sun patio surround
- Large separate studio perfect for working from home in peace and privacy
- Well-established natural gardens complimenting the location
- Built in storage, ceiling fans, double garage, 4-person inclinator
- Chatswood Public/High School zones, close, and walking distance to Lindfield Learning Village
- Doorstep of Lane Cove National Park yet close to urban café lifestyle
- Quiet cul-de-sac, short stroll to buses for Chatswood/Macquarie Park
Interested in this property?
32-34 River Avenue Chatswood West


































