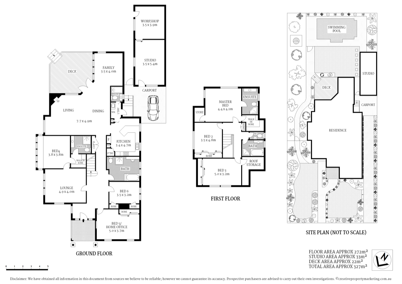
This magnificent family residence on 967.5m2 of land presents expansive updates and additions of exceptional quality featuring multiple living areas. The flowing layout and clever design offer versatility for large or extended families making it ideal for cross generational living. Light abounds through the interiors – even on cloudy days – bringing a natural sense of wellbeing and relaxation. New carpet upstairs and fresh paint add to the timeless appeal of brush box floors and the original decorative ceilings. In the popular "city avenues" enclave with level stroll to transport, school and shopping. In Killara High School zone.
- Separate lounge and adjacent bedroom with en suite is ideal as in-law accommodation
- Open plan living and dining enjoys a Jetmaster wood fireplace and flow to the deck
- Family room overlooking the pool and garden provides a great spot for TV and games
- Granite kitchen, breakfast bar, Smeg gas cooktop/electric oven, dishwasher, microwave
- Five large bedrooms all with built-in or walk in robes, two with en suite bathrooms, sixth bed/study
- Five well-presented bathrooms, two full mains with separate baths and showers
- Large deck for sunny days, barbecues and awesome indoor/outdoor parties
- Saltwater pool with paved patio and solar heating perfect for all the family
- Level lawn and beautiful picket fence traditional garden for elegant street appeal
- Great studio currently houses a home-based business, easily converted to garage
- Carport and on-site parking, alarm, ducted reverse air con, abundant storage
- Stroll to buses for city and rail, in Lindfield East Public and Killara High zones
27 Hobart Avenue East Lindfield





























