



























35 Robinson Street, East Lindfield
HouseSold at Auction for $3,160,000
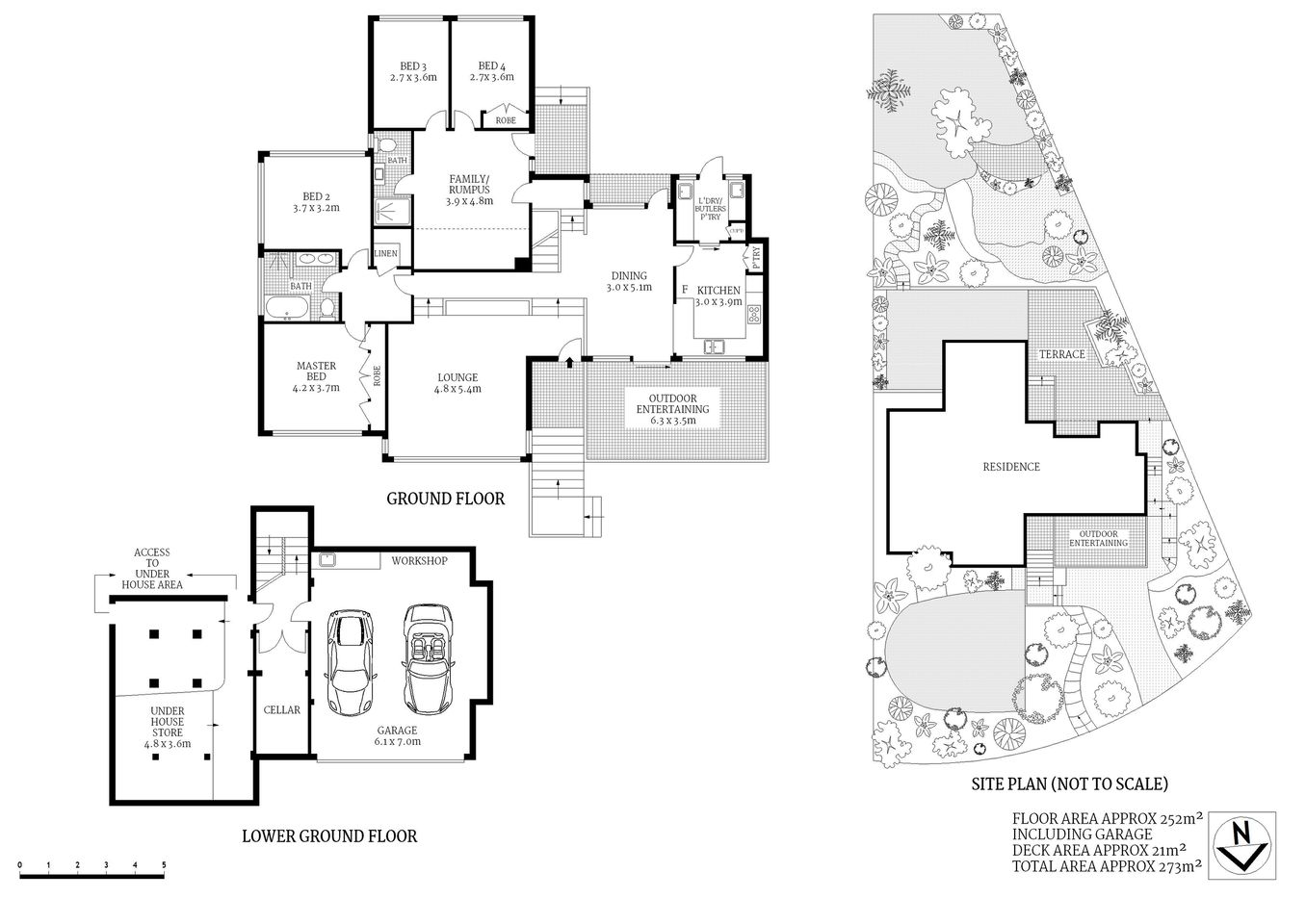
Price4
Beds2
Bath2
CarsA pedigree and provenance like no other, designed by modernist architects Oser, Fombertaux & Associates, completed in 1969 and offered for only the second time. Lovingly and respectfully restored and renovated by the current owner, whose step-father was Brian Pettit of the renowned Pettit & Sevitt architectural partnership.
Perfect for devotees of the iconic "Sydney School" style and for those desiring a family home that relates to the natural Australian landscape through sweeping ridgeline views across Garigal National Park. Nestled on an 879sqm approx. parcel of land with a sunny north aspect.
- Showcasing the unique Australian take on mid-century modern architecture
- Expansive glass and continuous-line raked ceilings blur indoors and out
- Beautifully appointed lounge with "floating" ambience in a leafy setting
- Open plan dining area flows on two sides to the outdoor entertaining areas
- Sleek contemporary stone kitchen, butlers' pantry/laundry, pass to deck
- Stainless steel appliances, gas cooktop, two ovens, microwave, dishwasher
- Separate family room ideal as a living area or study hub for kids or teens
- Four bedrooms, versatile layout with option for a private parents' retreat
- Two uber-cool bathrooms, heated towel rails, bath and heated floor to main
- Effortless outdoor entertaining on the elevated deck and paved courtyard
- Adventure garden for kids, level lawn, viewing platform for breezy relaxation
- Double garage, internal access, fab 600 bottle wine cellar, abundant storage
- Zoned ducted reverse air con, instant gas hot water, auto garden irrigation
- In Lindfield East Public and Killara High Schools zones, stroll to local shops
- Walk to bus for Lindfield rail and shops, and local express bus to the City
35 Robinson Street East Lindfield







