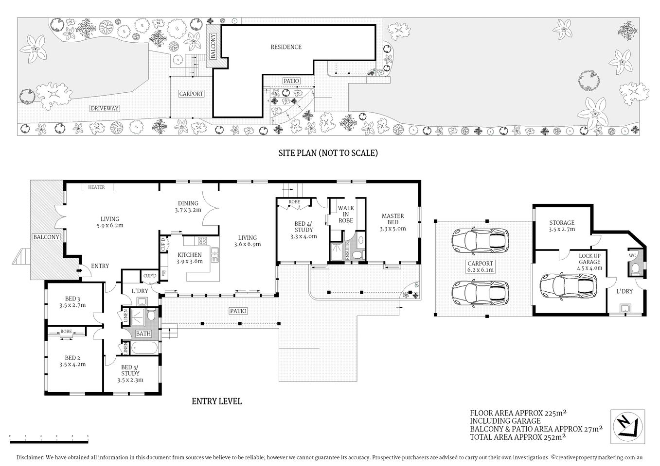
Showcasing a spectacular 1,353sqm of land with a northerly rear aspect, this full brick family home presents a blank canvas opportunity to fully refurbish or renovate or completely rebuild to realise your dream (stca).
Ideal step up the property ladder at an attainable market level in a family-oriented location presenting a mix of original and newly built dwellings. Take advantage of the elevated side of the street, where a second storey could capture leafy district views.
Enjoy proximity to excellent local shopping and transport plus premier school catchments that make this area such a drawcard.
- Light-filled and generous proportions throughout to enhance with your own style
- Large open plan lounge and dining brimming with versatility for growing families
- Family room with expansive glazing for light and access to rear garden and entertaining
- Modern open kitchen, stone benchtops, great storage, oven, gas cooktop, dishwasher
- Large bedrooms, main with two-way en suite and walk in robe, option for study
- Deep set gardens front and rear, sweeping lawns, lock up garage and carport
- Bus directly across street for city express, Roseville, Lindfield and Chatswood
- In Lindfield East Public School and Killara High School zones, 150m to shops
- Access to private schools along North Shore line, enjoy local bushwalking
Interested in this property?
36 Wellington Road East Lindfield
















