This light and open full brick art deco family home on 980sqm of land enjoys a sun-kissed elevated position with a peaceful treetop vista and fresh summer breezes. Immaculately presented throughout, with formal and casual living and dining areas providing superb adaptability for modern family life. A breathtaking arched picture window is the centrepiece of the casual living room and frames the beautiful rear garden
The location offers a short walk to city buses, a stroll to popular Lindfield East Public School around the corner and zoning within highly sought Killara High School catchment.
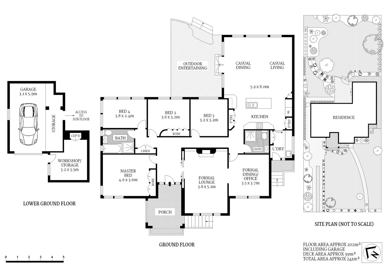
- Nothing to do but enjoy, high ceilings, polished timber floors, new carpet
- Formal lounge with fireplace, versatile formal dining currently a home office
- Open plan casual living/dining flowing out to the sandstone entertaining area
- Modern granite kitchen, gas cooktop, Bosch double oven and a dishwasher
- Excellent kitchen storage, appliance cupboard and an island breakfast bar
- Four light and generous bedrooms, master with view and built-in robes
- Two spotless bathrooms, separate bath and shower to main, internal laundry
- Sandstone outdoor entertaining shaded by a stunning Japanese Maple
- Manicured traditional gardens, wide sweeps of lawn perfect for play
- Lock up garage and storage room/workshop, built in storage
- Ducted reverse cycle air con (near new), hot water service, gas points
- Excellent public school zones, stroll to shops and buses for City and rail
9 Robinson Street East Lindfield





























