Timelessly elegant, this statuesque full brick home c.1928 holds a prime position across 967.5sqm of deep-set land with a 20m street front. Well-loved and showing faded grandeur, the home is ripe for renovation and free of heritage constraints offering an outstanding opportunity to update and extend on its elegant proportions or the chance to completely rebuild to your dream specifications (stca).
The premier location enjoys a short stroll to local and express City buses, a pleasant walk to excellent shopping, café and playground and zoning for Lindfield East Public School and highly sought after Killara High School.
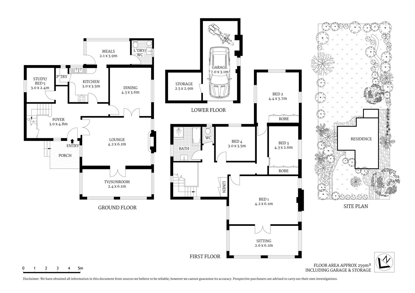
- Intact original grandeur, timber joinery, staircase, leadlight, high ceilings
- Two storey street appeal, distinctive Art Deco curves in mature gardens
- Spacious lounge with fireplace, adjoining dining, large sunroom/TV lounge
- Traditional kitchen and adjacent family meals, gas cooktop, w.i. pantry
- Four bedrooms, fifth/study downstairs, palatial master with sitting room
- Vintage bathroom, bath, shower, separate wc, internal laundry with wc
- Lock up garage and storage room, sandstone paths and covered patio
- City express bus 450m, Lindfield rail bus 120m, local shopping 500m
- Stroll to Lindfield East Public 170m, bus to Killara High, stroll to park
129 Tryon Road East Lindfield





























