This property is available for private viewing, and may also be available via digital inspection to keep in line with the current government regulations. This property is scheduled to go to auction and will be live-streamed through AuctionNow. Interested parties are able to view and bid through this platform. If you intend on registering for this auction please contact the listing agent to discuss proceedings.
All in-person viewings will be between the agent, and one additional person. All necessary measures have been put in place to ensure the health and wellbeing of all parties. Please contact the listing agent for more information.
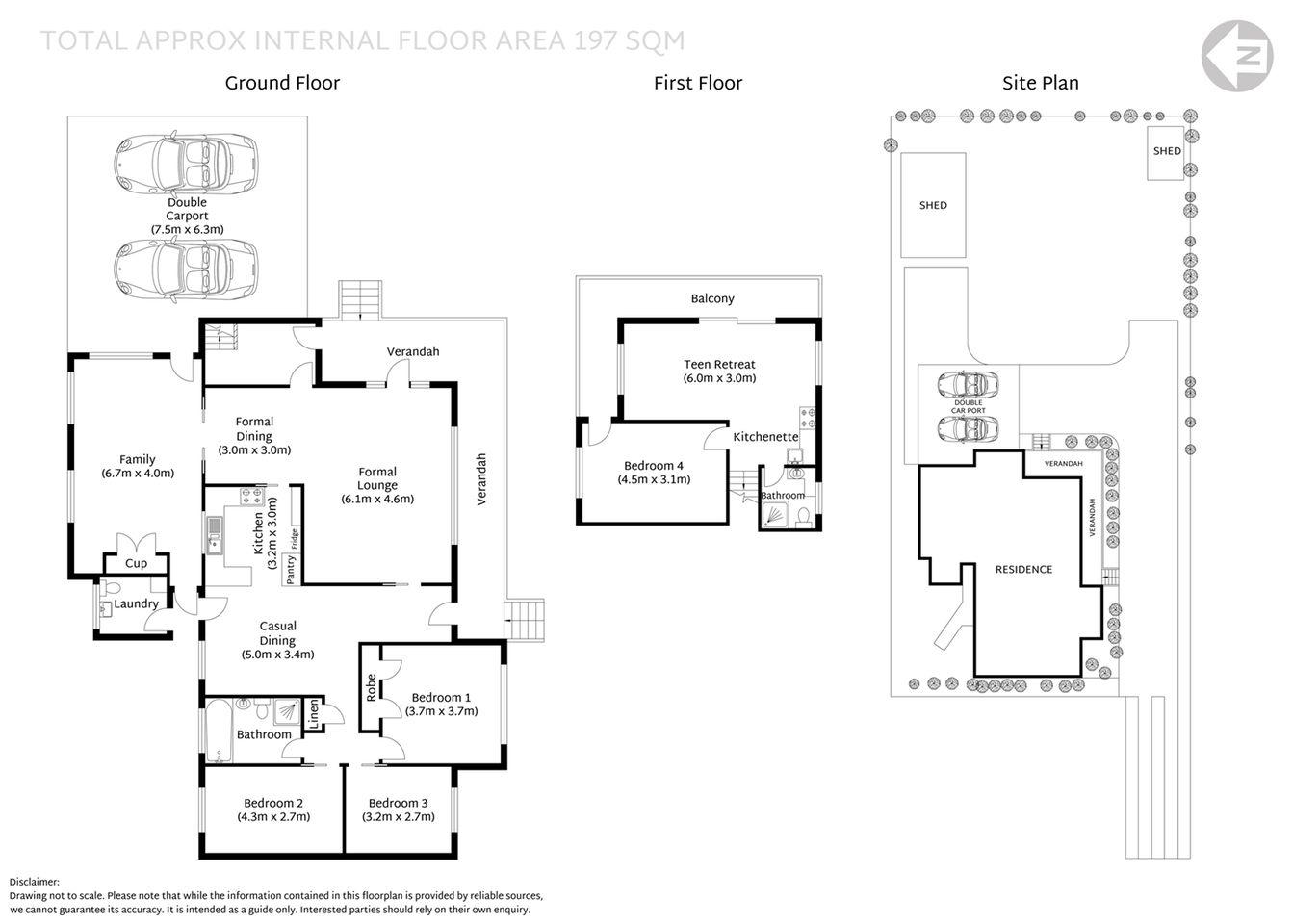
**Properties are for sale individually or combined** Approximately 1,119sqm – family home plus self-contained flat/office offering several living or development options, enhance the existing dwelling or build a dream home (STCA) in a quiet child-friendly street while enjoying potential rental returns from the existing property. It is a short stroll to Epping Public School, shops and station.
- Multiple living areas include family, rumpus, casual meals area
- Self-contained flat has bedroom, living, bathroom and kitchenette
- Additional building suitable for home office with separate entry
- Air conditioning, double carport, generous L-shaped balcony
- Each property provides an ideal investment proposition
- Ideally located walking distance to shops and transport interchange
- Opportunity to further capitalise in a sought-after area
- Cheltenham Girls and Epping Boys High
26a York Street Epping



















