There are few properties that can offer the versatility, size and luxury that is on offer at 90 Greenbank Drive Glenhaven. This stunning light filled home is set on a beautiful 4000m2 with a north to rear aspect, surrounded by manicured gardens with entry via its circular driveway and electric gates. The family chef will appreciate the stunning stone kitchen complete with stainless steel appliances and how it effortlessly flows to the relaxed living areas, both inside and out taking in the cool blue waters of the inground pool and peaceful bush aspect.
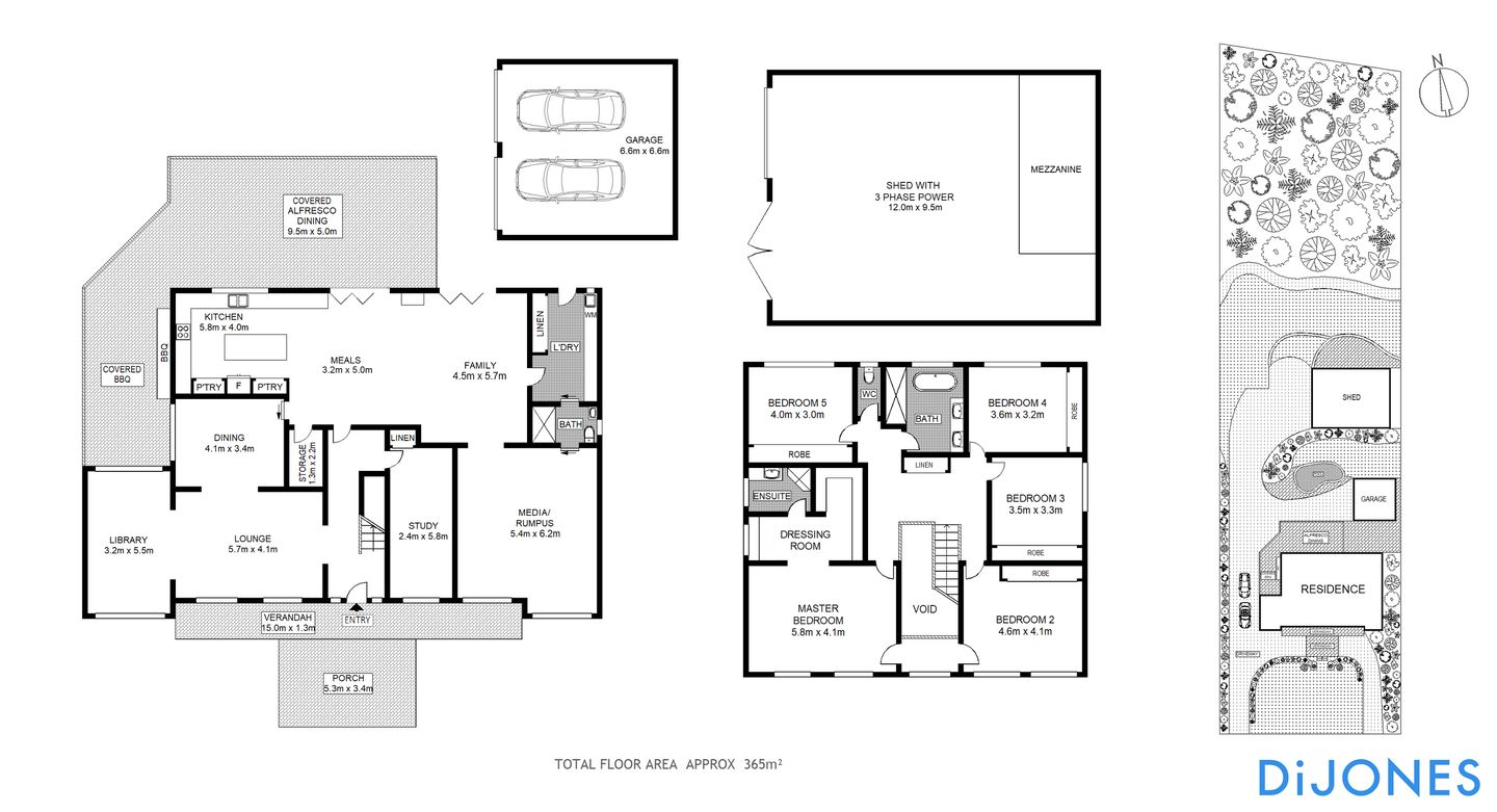
An exceptional bonus to the already wonderful home is the enormous 114m2 storage/shed space with full height doors & access to 3 phase power. For the tradie, car enthusiast or someone who currently leases storage or industrial space this shed could be the perfect answer to saving yourself thousands of dollars. Complementing this there is also a fantastic home office for you to complete your days work.
- Large multiple living spaces include both formal and informal areas plus Media room.
- Gourmet Kitchen with island bench overlooks rear yard, pool and bush aspect.
- Palatial Master with generous dressing room and luxurious ensuite.
- A further 4 oversized bedrooms plus executive study.
- Home constructed with a steel frame.
- Alfresco Dining with BBQ built in.
- Ducted air, alarm, irrigated gardens, North to Rear Aspect.
- All bathrooms and laundry with beautifully appointed fixtures & fittings.
- Garaging for 8 cars plus extensive off street parking and level grass areas.
- Zoned for Samuel Gilbert Public School and Castle Hill High.
- 150m to public transport, easy access to Castle Hill Entertainment Precinct & Metro.
90 Greenbank Drive Glenhaven


















