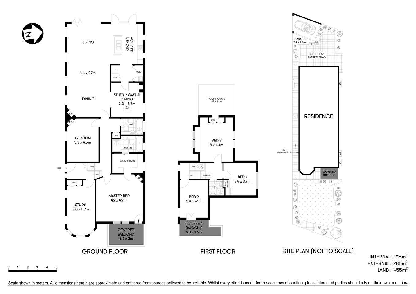
This spacious Federation home in a prestige location, is a level walk to everything you need. This home has space and style, with timeless period character and modern day touches. The heart of the home is the large kitchen and open plan casual area that interacts seamlessly with the outdoor living. Set on a blissfully quiet street, walk to schools, buses, ferry, and all there is to love about Mosman Village, including boutique shops, trendy cafés, bars and restaurants.
- Exceptionally spacious kitchen and casual living areas open to outdoors
- Large stone kitchen with quality gas appliances and adjoining laundry
- Separate living or TV room and two studies
- Four bedrooms, two with balconies, master with ensuite and walk-in robe
- Versatile floorplan, high ceilings and timber floors, extensive storage
- Easycare paved courtyard for entertaining and pretty lawns and gardens
This property is scheduled to go to Auction onsite. Registered bidders will be given priority to attend the auction before spectators due to potential social distancing requirements. If you intend on registering, please contact the agent to discuss proceedings.
This property is available for viewing by either attending the scheduled open homes or by private viewing should this be your preference. All necessary measures have been put in place to adhere to the recent Government regulation and to protect the health and safety of all parties. For more information please contact the listing agent.
44 Calypso Avenue Mosman





















