Encased by floor-to-ceiling glass, this beautiful family sanctuary offers a highly enviable lifestyle brimming with tranquility, privacy and natural light. Commanding an exclusively elevated position among the gum trees, it captures a striking outlook across its natural surrounds, while enjoying a north facing aspect. Providing the option of dual occupancy, this flexible home is also well suited for multi-generational living and is further complemented by its prestigious blue ribbon setting.
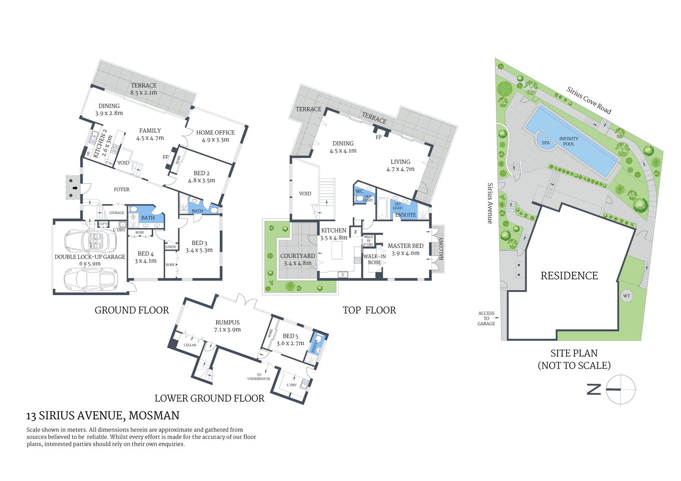
- Wide selection of formal and informal living zones across all three levels
- Two modern kitchens, home office and versatile lower level for teens/guests
- Five double bedrooms fitted with built-in wardrobes, three with chic ensuites
- Multiple balconies, 12. 5 metre gas heated infinity edge lap pool and cabana
- Gas fireplace, ducted air conditioning, double lock-up garage, vast storage
- 200 metres from Sirius Cove, close proximity to cafés, shopping and beaches
This property is available for private viewing, and may also be available via digital inspection to keep in line with the current government regulations. This property is scheduled to go to auction and will be live-streamed on Zoom. Interested parties are able to view and bid through this platform. If you intend on registering for this auction please contact the listing agent to discuss proceedings.
All in-person viewings will be between the agent, and one additional person. All necessary measures have been put in place to ensure the health and wellbeing of all parties. Please contact the listing agent for more information.
13 Sirius Avenue Mosman




























