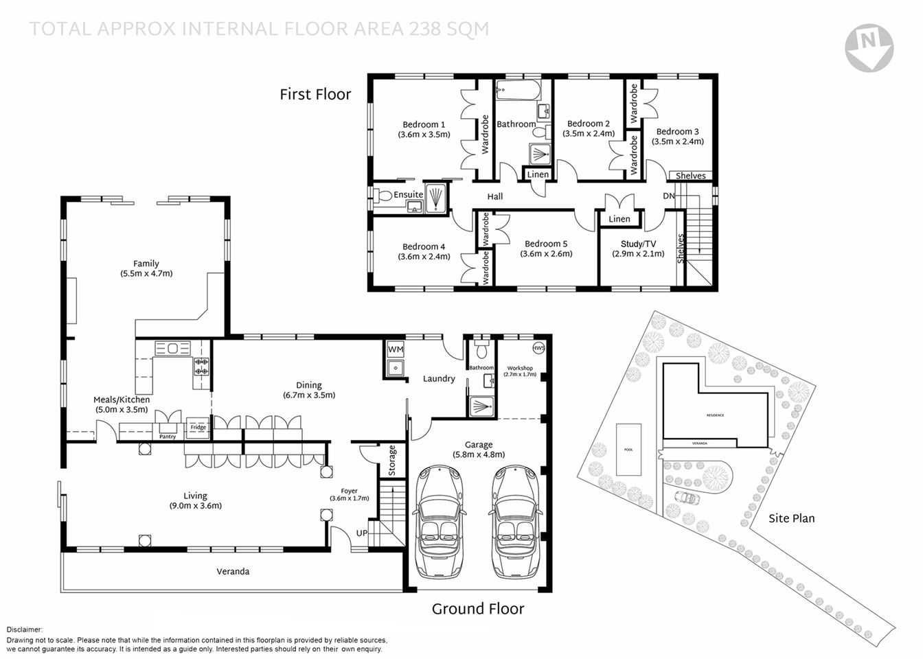
This well maintained dual level family home with multiple entertaining and living areas is bursting with opportunity, character, warmth and offers a multitude of possibilities for the astute purchaser.
Accessed by its own private driveway it is set in a quiet street in a peaceful suburb with no through traffic yet so convenient to Epping station.
Easy short walk to North Epping village shopping and to everything North Epping has to offer.
- Seamless flow from large family room to outdoor areas
- Short walk to Epping North Primary School
- School catchment zones for Cheltenham Girls, Epping Boys and Carlingford High Schools
- Bus to Epping station at the end of the street
- Four zone ducted air conditioning, solar hot water
- Rain water tanks and automatic gardening watering system
- Solar panels generating 10 kwh per day year round average
14a Bailey Crescent North Epping


















