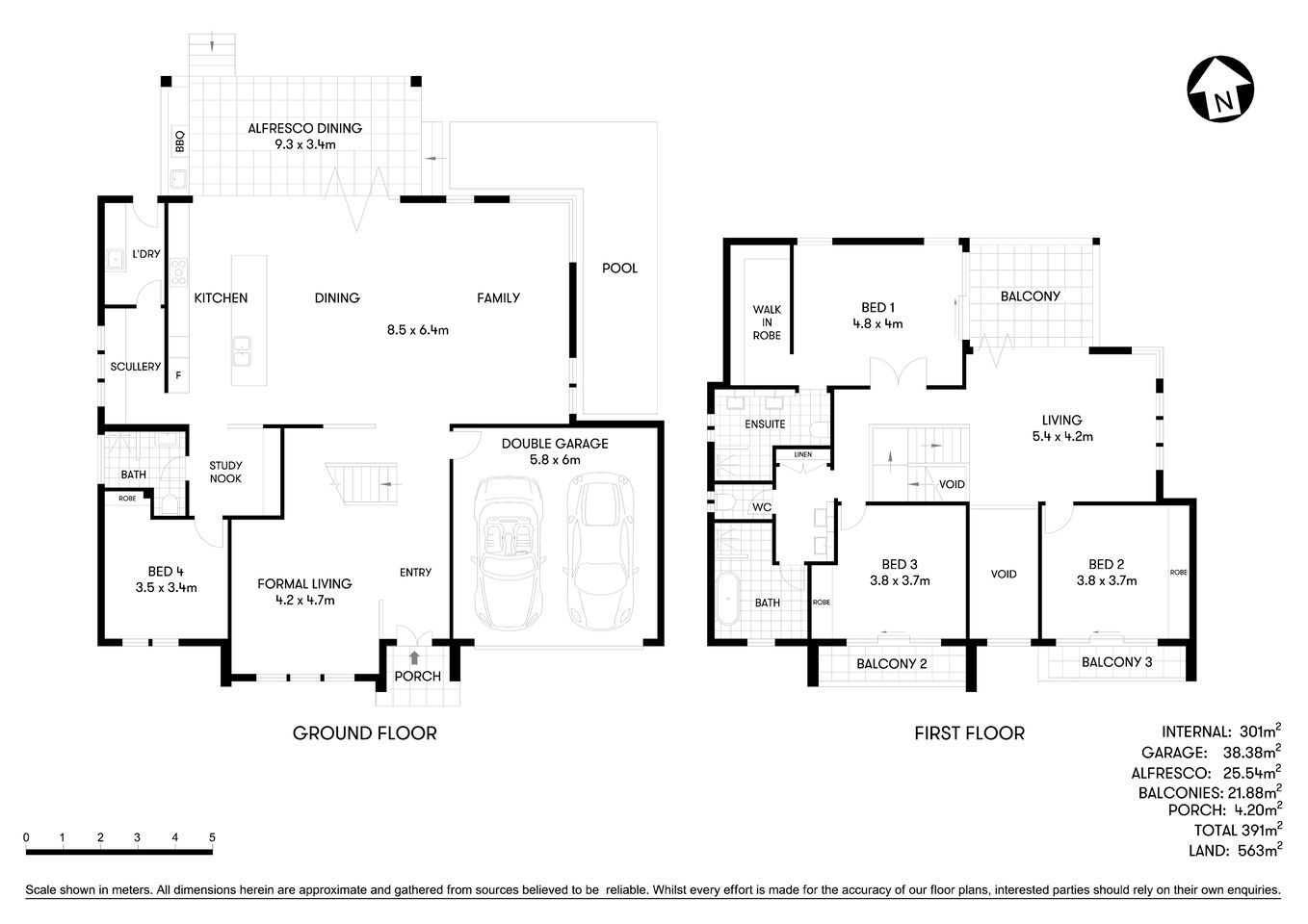
Architecturally designed with a focus on luxury, this brand new residence caters for grand family living. Stepping inside, a choice of light bathed interiors interconnect across two levels to ensure flexibility. Surrounding bi-fold doors seamlessly fall away to connect sunlit alfresco sections, while further creating an unparalleled sense of space and a lifestyle of multi-zonal entertaining. Sprawling across a north to rear parcel, the expansive home of a total area 391sqm enjoys a prized setting in the heart of Northbridge.
- Flowing open layout adorned in high end finishes and wide timber floorboards
- Large terraces capture sweeping district outlooks and glimpses of the harbour
- Covered area with barbecue leads down to lush lawn and heated swimming pool
- Centrepiece kitchen has automated cabinetry, scullery and Miele gas cooktop
- Four bedrooms, three decadent bathrooms and internal access to double garage
- Walk to city buses, minutes from Clive Park, elite schools, Northbridge Plaza
This property is scheduled to go to Auction privately onsite. Only registered bidders are to participate either in-person or through our online Auction platform where you can bid and or watch the Auction. If you intend on registering, please contact the agent to discuss proceedings.
This property is available for private viewing, and may also advertise an open time. All necessary measures have been put in place to adhere to the recent Government regulation and to protect the health and safety of all parties. For more information please contact the listing agent.
9 Miowera Road Northbridge


















