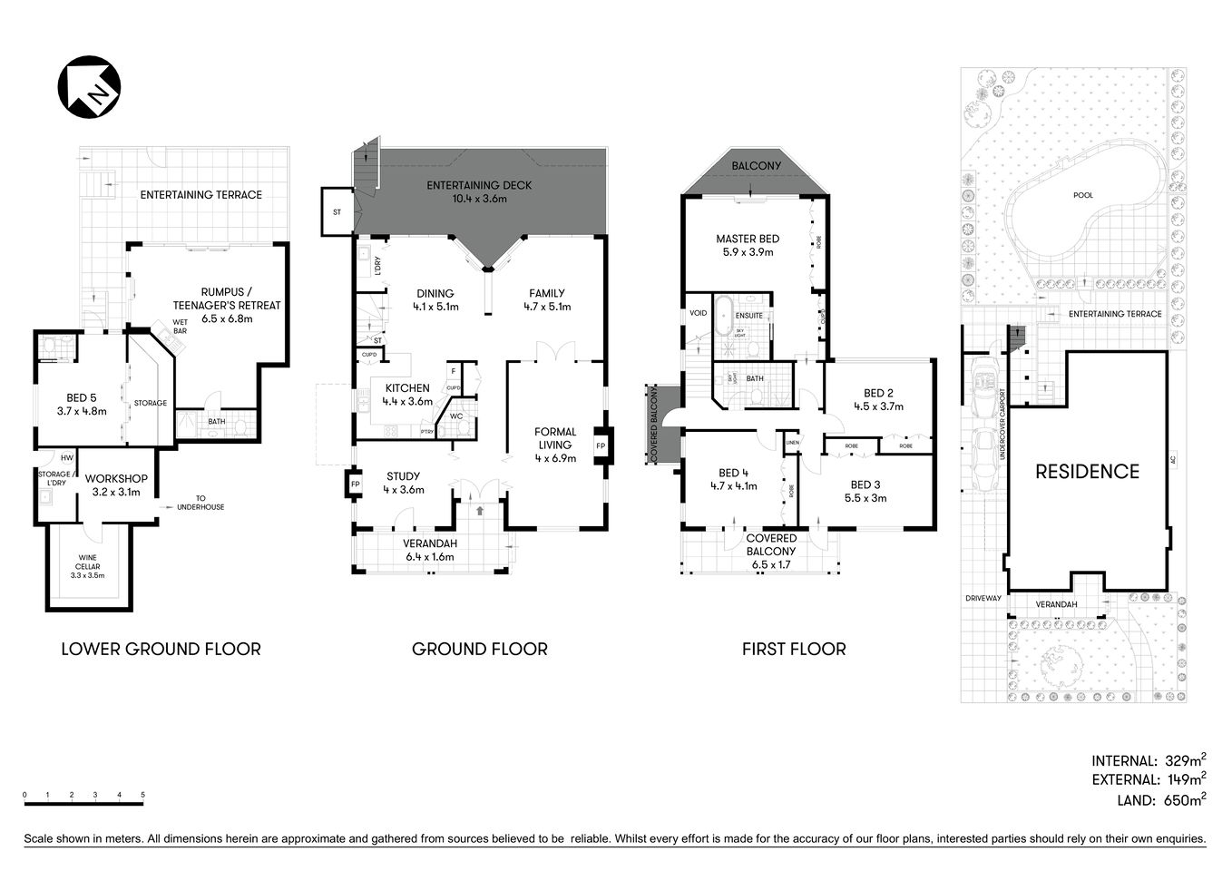
A sunny northerly aspect and sweeping district views capturing glistening Sailors Bay make this elegant Hamptons style home an inspiring prospect for a growing family. Masterfully renovated interiors are immaculately presented, delivering abundant space, flexibility and a relaxed coastal feel that combines with effortless luxury. Set on a quiet street in surrounds fit for an island resort, it's a stroll to the marina, Northbridge Baths, golf club and local cafés, while near buses and schools.
- Formal living with wood burning fireplace, integrated family and dining zone
- Grand entertaining deck overlooks garden and inviting salt water heated pool
- Luxurious CaesarStone kitchen includes dishwasher, quality Miele appliances
- Superb bedrooms, three with balcony flow, master has ensuite and water views
- Versatile rumpus/teenager's retreat, huge utility room, workshop plus wine cellar
- Ducted air conditioning, bathroom underfloor heating and a tandem carport
5 Narooma Road Northbridge




















