DA approved plans to subdivide, renovate or rebuild your own estate on over 2,900sqm.
Accessed via a tree-lined driveaway and showcasing a wonderful selection of oversized living zones with a seamless transition to the stunning expanse of country club-style alfresco entertaining areas and vast child-friendly lawns, it awaits a new family to take full advantage of its exclusive blue ribbon setting.
Conveniently placed with easy entry to Pymble Ladies' College via the Grey House walkway and a leisurely stroll to the train station, this is an outstanding lifestyle opportunity with plenty of scope to further update and capitalise where desired.
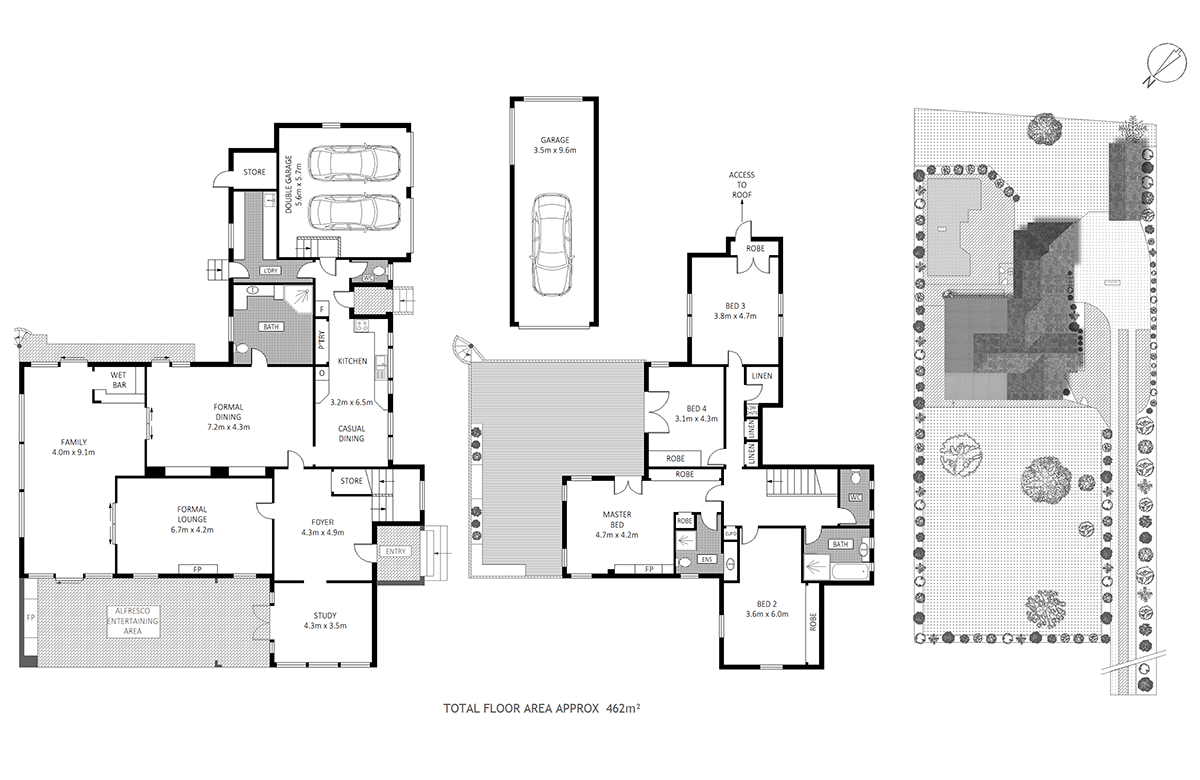
- Double brick character home updated over the years for modern family living
- Wide entry foyer extending to a multitude of formal and casual living zones
- Family living with wet bar and access to the vast private gardens and pool
- Eat-in kitchen, grand formal dining with custom cabinetry and gas fireplace
- Vergola terrace with sandstone gas fire ideal for year-round entertaining
- Formal lounge with wood fireplace, home office and original hardwood floors
- Generously sized bedrooms plus a huge deck accessed via the master suite
- Travertine-framed swimming pool and fully enclosed park-like level lawns
- Array of private outdoor entertaining spaces and distant city skyline views
- Modern bathrooms, ducted reverse cycle air and parking for five cars
- Walk to Pymble Ladies' College, train station and village shops
72 Pymble Avenue Pymble
















