Setting a new benchmark in modern family living, this grand estate basks in over 3,600sqm of resort-inspired grounds and delivers every conceivable luxury both indoors and out. Accessed via a private gated driveway, it combines complete serenity with a sophisticated country club-style vibe to provide the quintessential sanctuary for the most discerning buyers.
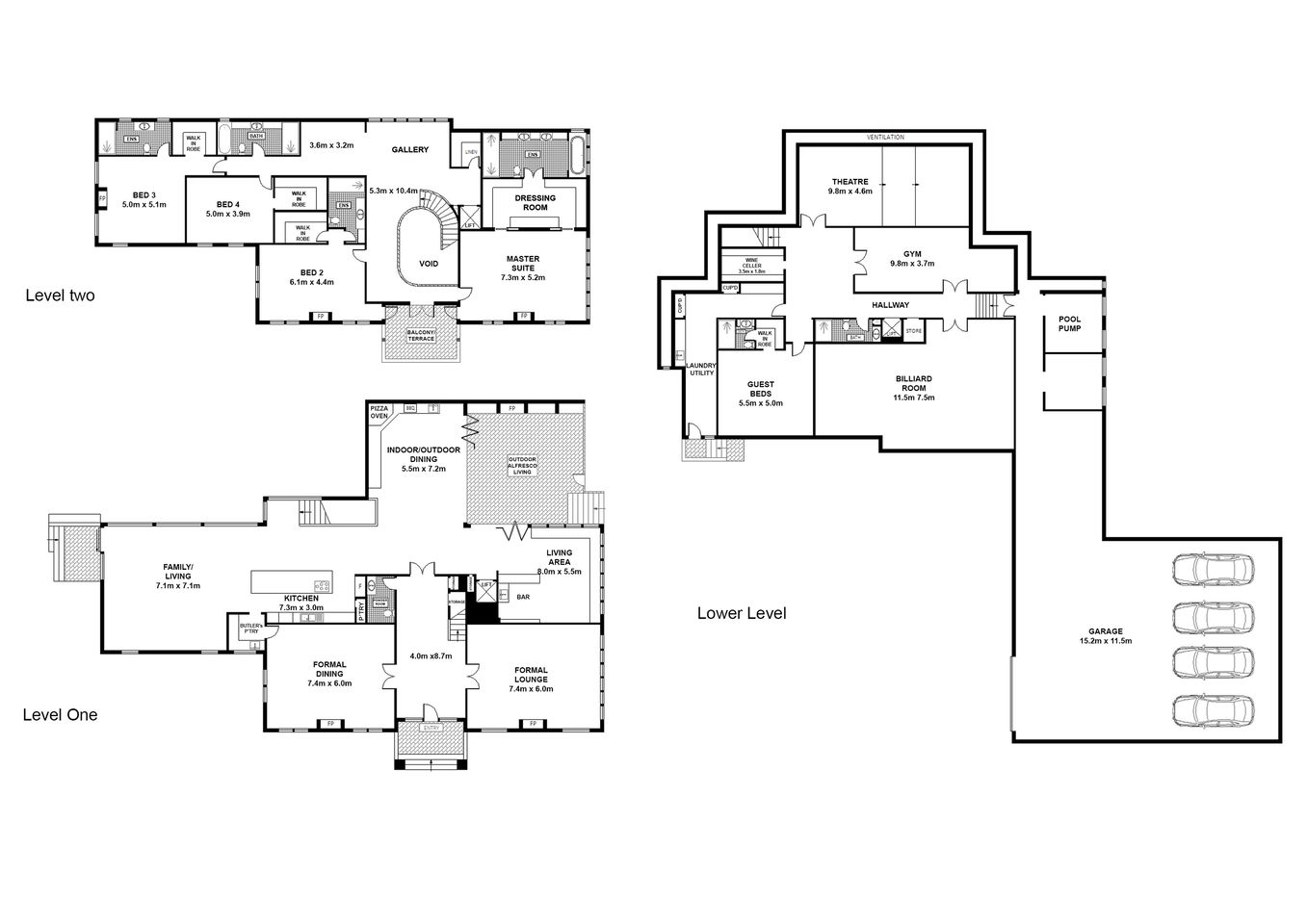
Less than 5 years old and meticulously crafted with the finest appointments, a lift takes you to each of the 3 palatial levels. Showcasing an exquisite array of entertaining zones, there's a state-of-the-art 12-seat home theatre, pool room, wet bar, exquisite indoor/outdoor kitchen and an all-weather travertine terrace with outdoor wood fireplace. Accommodation is equally impressive with 5 opulently-fitted bedrooms, 4 with designer ensuites and 3 with Bio Flame fireplaces.
A veritable masterpiece of contemporary architectural design, the home also features basement parking for more than 12 cars, integrated smart surround sound, C-Bus system and wireless mesh NBN. Predominantly double brick construction and framed by park-like gardens, this is the ultimate family haven, just 350m to Pymble station.
- Solid concrete & double brick construction framed by park-like gardens
- Vast open living with bi-fold doors to the year-round alfresco setting
- Designer Miele-appointed gas kitchen with butler's pantry & stone island
- Integrated espresso machine, Mastercool fridge & steam/convection ovens
- Grand ballroom-sized formal dining room plus multiple family living areas
- Gas heated mosaic infinity edged pool & spa framed by established gardens
- Poolside indoor kitchen with woodfired pizza oven, BBQ , & Vintec fridges
- Custom wet bar with built-in seating overlooks the north-south tennis court
- Wide curved stairway leads to 4 oversized bedrooms, 3 with ensuites. Guest (5th) bedroom & ensuite downstairs
- 6 luxury bathrooms, 2 with stand-alone stone bathtubs, plus powder room
- Home theatre with 11-speaker ATMOS sound and 4K projector
- Enormous pool room/games room, home gym and 1200-plus bottle cellar
- 12-plus car garage
- Integrated C-Bus and sound system. Ducted reverse cycle air throughout
- Private gate access to Pymble Ladies' College, an easy 350m to the station
- Prestigious dress circle address within easy reach of elite private schools
Strictly by private appointment, call or text for the time.
15 Pymble Avenue Pymble
























