This well presented solid one level full brick family home is surrounded by park like level lawns, nestled on 1694sqm of near level lawn. The property features light and bright interiors with a flexible open floor plan whilst offering further scope to renovate or re-build. Conveniently located walking distance to all amenities, parks, playgrounds, premier schools, shops, and within the Killara High School catchment area.
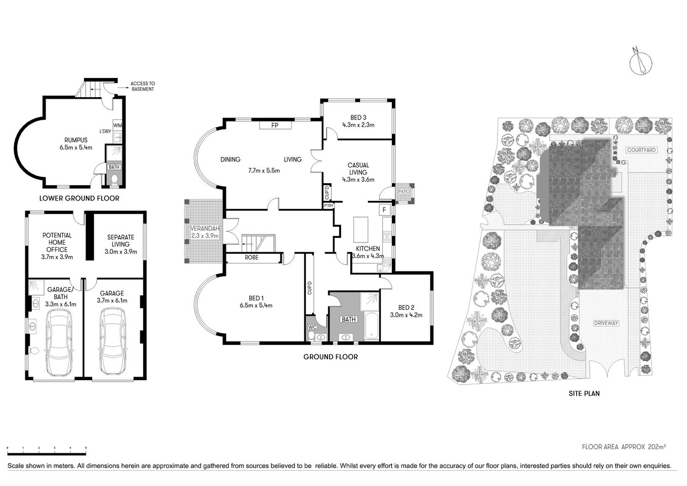
- Spacious open plan living and dining room with feature open fireplace
- Large entertaining terrace and park-like level lawns
- Renovated open plan gas kitchen with stainless steel appliances with large and open casual dining
- 3 bedrooms, enormous master bedroom with sunny dual aspect
- Large rumpus room with bathroom facilities and separate entry to garden
- Ducted reverse cycle air conditioning, ceiling fans gas bayonets; ample storage space; laundry chute
- Double lock up garage with dual storage rooms or home office potential
- Walk Gordon East Public School, In Killara High School zone, Walk to Gordon Railway and Gordon Shopping Village
2B Narelle Avenue Pymble








