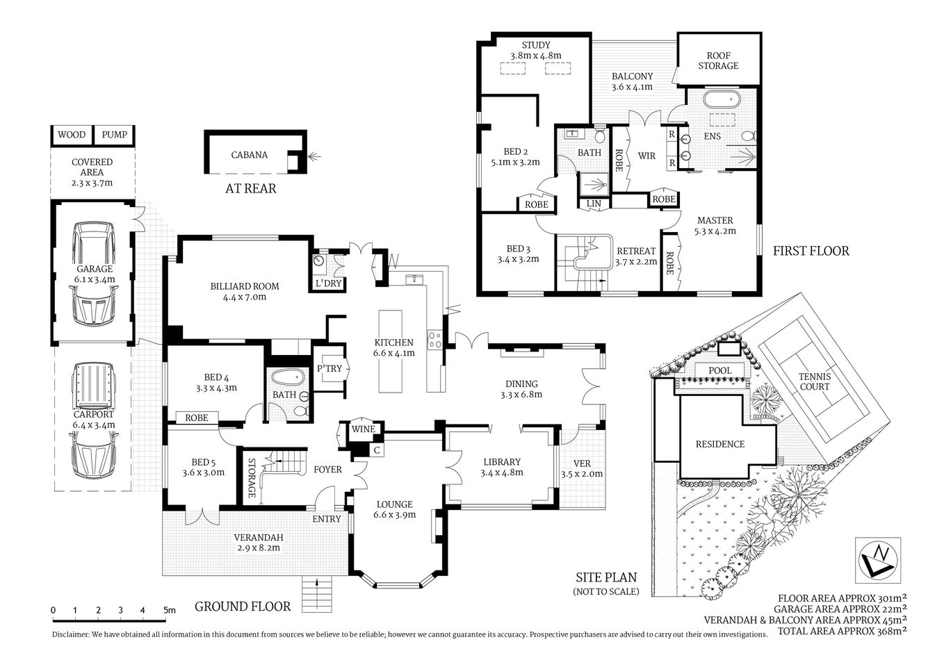
A country estate comes to Roseville, with a perfect balance of refined original elegance, and impressive bespoke updates and additions brimming with style. Set across a magnificent 1739sqm parcel of land containing a tennis court and in-ground pool.
The masterpiece kitchen features DEKTON bench tops, high quality appliances and a centrepiece 3-metre custom-designed island with recycled timber top as beautiful as it is practical. Multiple living spaces and elegant bedrooms, including a luxurious master bedroom with vast ‘day spa’ ensuite, pair with rich timber floors, coffered and beamed ceilings, and classic French windows flawlessly accented with eclectic touches to create home as a liveable artwork.
- Luxurious master bedroom, dressing room, balcony and vast “day spa” ensuite
- 180m stroll to City express buses, 1.2km walk to rail and Roseville village
- In Roseville Public/Killara High School zones, close to Roseville College
- Formal lounge with Heat Glo gas fireplace, formal dining opening to terrace DEKTON kitchen, vast island dining bar, marble pastry slab, bifold windows
- Premier Ilve gas/electric range, Miele steam oven and combi microwave, custom designed US-style range hood
- Restful library/sitting room, picture window enjoying the garden view
- Warm and inviting billiard room includes a built-in home office set up
- Five charming bedrooms, inspired upstairs layout maximises space
- Luxurious master bedroom, dressing room, balcony, “day spa” ensuite
- Three modern beautifully appointed bathrooms, high quality fittings
- Fabulous “wine wall” cellar with glazed doors to display your collection
- Flagged entertaining areas perfect for barbecues and viewing tennis
- Fully tiled pool with sun terrace surround, cabana with gas fireplace
- Host your own Grand Slam on the synthetic surface tennis court
- Solar power, ducted gas heat downstairs, ducted reverse a/c upstairs
- Charming two-storey façade with a sandstone front verandah
- Bordered by Little Digger Park with a copse of mature trees lending privacy
Interested in this property?
91 Roseville Avenue Roseville

































