This immaculately presented full brick family home set on a level 658sqm corner has been exquisitely restored and extended by owner architects to provide unique flexibility for astute buyers. It has a rare dual occupancy approval with a separate entrance from Spearman Street. With a superb private north facing indoor/outdoor lifestyle, stroll to Beauchamp Park, Chatswood Chase, Westfield, cafes, restaurants and buses. A 15-20 minute walk takes you to either Chatswood or Roseville station. Further potential to extend upwards (STCA).
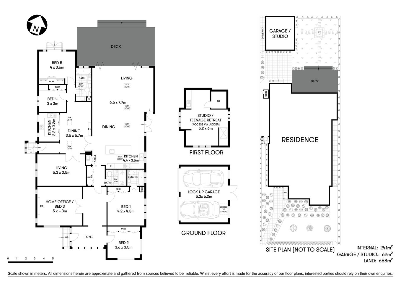
- Soaring pitched ceiling with skylights over generous open living/dining zone
- Rear large bi-fold doors open to an expansive deck with outdoor dining area
- Beautiful European oak floor, marble bathrooms with floor heating
- Deluxe master ensuite, all sizeable bedrooms. Ducted air conditioning.
- Bonus studio/office on top of the double lock up garage access from Spearman St
- Gourmet chef's kitchen has German double ovens, induction plus gas cooktop
- Professionally designed, beautifully manicured north aspect private garden
This property is available for private viewing, and may also be available via digital inspection to keep in line with the current government regulations.
All in-person viewings will be between the agent, and one additional person. All necessary measures have been put in place to ensure the health and wellbeing of all parties. Please contact the listing agent for more information.
21 Strathmore Parade Roseville

















