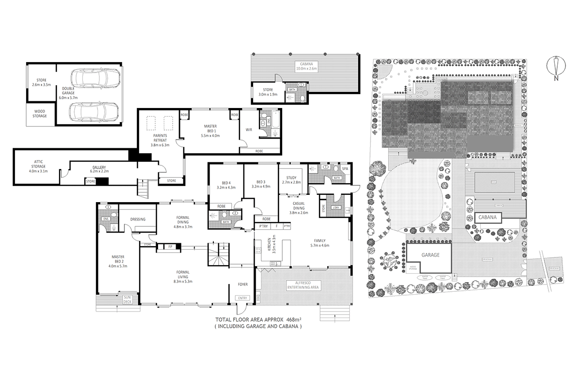
Set amidst 1,549sqm of beautifully landscaped grounds, this stunning residence by well-known architect Michael Dysart encapsulates the very essence of its modernist design principles of indoor/outdoor living. Renovated by its current and second owners in keeping with the home's flawlessly integrated living zones, it offers a unique family sanctuary within a prestigious east side location. Wrapped by established north-facing gardens, all-weather terrace and heated in-ground pool, its defining features include vaulted timber ceilings, a perfect northerly lounge room with open fireplace, secluded parents' suite, Tasmanian oak flooring and Western Red Cedar fixtures. Blissfully private both inside and out, from this park-like haven you're within walking distance to Turramurra station, Eastern Road shops and within the popular Wahroonga Public School catchment.
- Whisper quiet cul de sac nestled within Turramurra's prestigious eastside
- Immaculately landscaped gardens welcomes guests to a veritable secluded oasis
- North-facing living area with wood fireplace flowing to the private gardens
- Modern CaesarStone gas kitchen equipped with premium European appliances
- Glass-pergola terrace with heat bars and fans for year-round entertaining
- Solar-heated pool and cabana with poolside change room/storeroom and shower
- Secluded master suite flowing to a private Himalayan sandstone terrace
- Children's wing on the lower-level includes two bedrooms and a bathroom, along with a study
- Family living with custom cabinetry and bespoke home office with shelving
- Spacious loft bedroom with ensuite and rumpus/ 5th bedroom perfect as a teen retreat
- Raked timber ceilings, Tasmanian oak flooring throughout the main level
- Fitted robes, ducted reverse cycle air, Velux skylights and louvre window
- Motorised gate entry, 12,000L rainwater tanks and back-to-base alarm system
- Walk to Turramurra station, Eastern Road shops, cafés and playing fields
40 Evelyn Avenue Turramurra

















