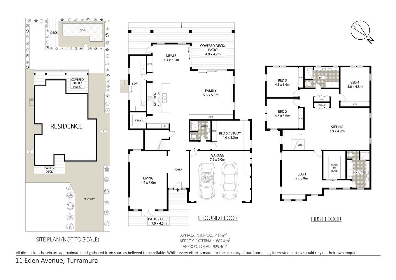
Delivering immediate street appeal, this luxurious custom-designed residence presents as new, with immaculate interiors epitomising quality craftsmanship across two levels. Beyond the private garden frontage, a step inside reveals a carefully considered layout focused on maximising comfort and creating an effortless connection to a spectacular outdoor entertaining haven. Ready to enjoy with nothing more to spend, the property is moments to station bound buses, Macquarie Centre, and highly desirable schools.
- Separate formal lounge, sweeping open living zone has easy outdoor flow via bi-folds
- Covered alfresco deck steps down to lush lawn, fire pit area and sparkling saltwater pool
- Designer Caesarstone island kitchen, quality Neff appliances and a huge walk-in pantry
- Massive bedrooms all with built-ins, deluxe master en-suite, home office or fifth bedroom
- Versatile upstairs retreat, premium fittings throughout, ample home storage, air conditioning
- Blue Gum timber floors, wool carpet in bedrooms, CBUS lighting, 19,000 litre rainwater tanks
11 Eden Avenue Turramurra





















