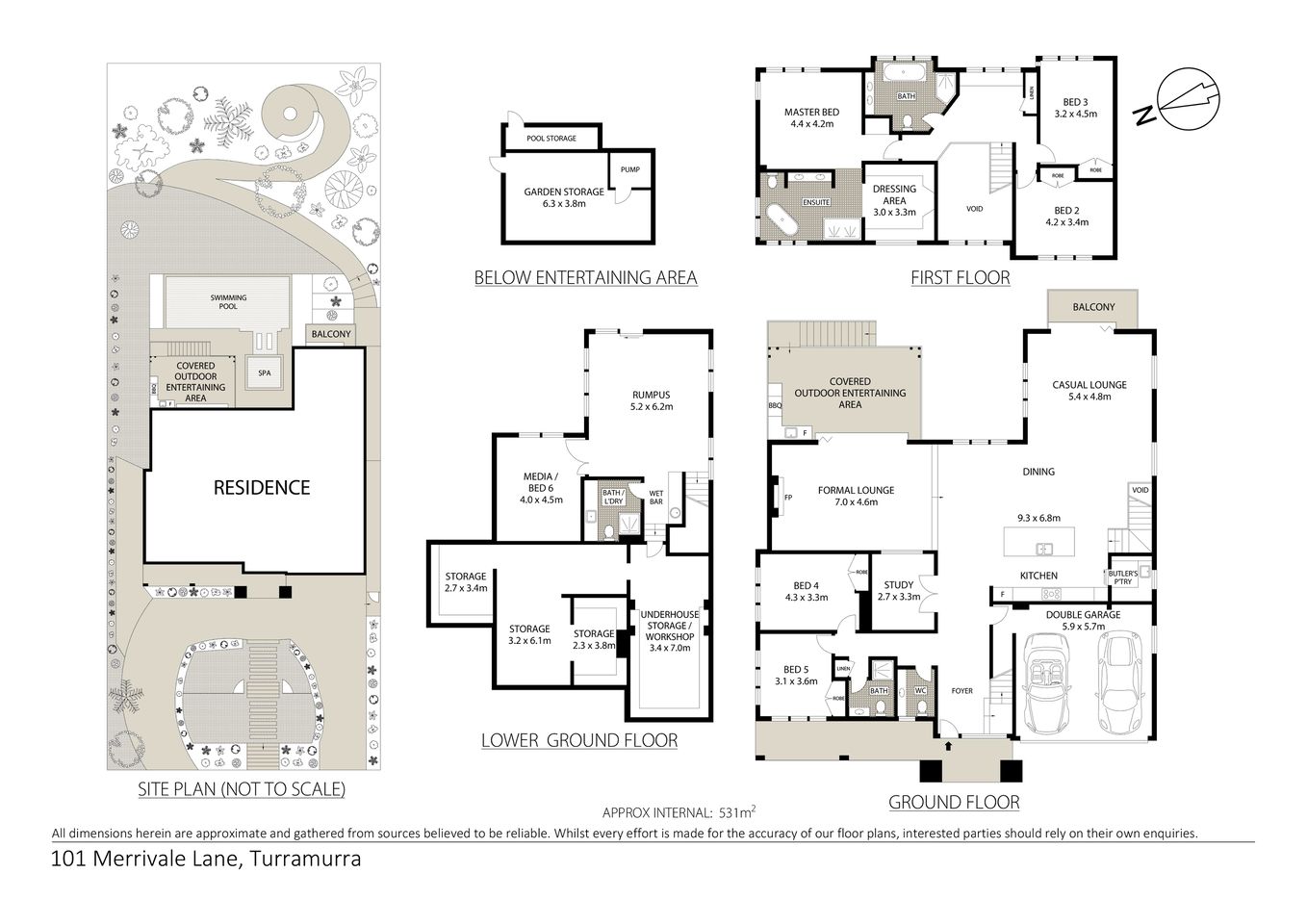
Claiming an enviable position overlooking the exclusive Pymble Golf Club, this luxurious fully renovated residence promises a first class living experience complemented by an ideal indoor/outdoor lifestyle. The entry hall reveals an immediate sense of space with soaring ceilings and superb floor-to-ceiling glass maximising natural light while showcasing the tranquil setting and natural cascading gardens. The layout flows across three levels with outstanding attention to detail, designer neutral tones and all living areas taking advantage of the golf course views. The property is set on a vast 1,157sqm block and is footsteps to Turramurra rail buses, mere moments to the golf club, St Ives Shopping Village and elite schools.
- Expansive integrated living and dining zone has gas fireplace and bi-fold doors
- Large covered entertainer's terrace with sweeping views over the golf course
- Five large bedrooms, built in robes, two home office spaces, fabulous master retreat with view, fitted dressing room and luxurious full ensuite bathroom
- Gas heated pool and mosaic spa, limestone surrounds, plus a manicured descending gardens down to a fire pit
- Gorgeous Caesarstone "Alpine Mist" kitchen integrated with living, huge island breakfast bar, butler's pantry and Miele appliances: gas cooktop, oven, steam oven.
- Huge master bedroom offers luxury dual vanity ensuite with underfloor heating
- Downstairs rumpus opening out to the garden and pool, adjoining media lounge, wet bar and bathroom, easily reconfigured as guest or in-law accommodation
- Double lock-up garage, Study, four zone ducted air-conditioning
- Located in Pymble public school catchment zone
This property is scheduled to go to Auction onsite. Registered bidders will be given priority to attend the auction before spectators due to potential social distancing requirements. If you intend on registering, please contact the agent to discuss proceedings.
This property is available for viewing by either attending the scheduled open homes or by private viewing should this be your preference. All necessary measures have been put in place to adhere to the recent Government regulation and to protect the health and safety of all parties. For more information please contact the listing agent.
101 Merrivale Lane Turramurra

















