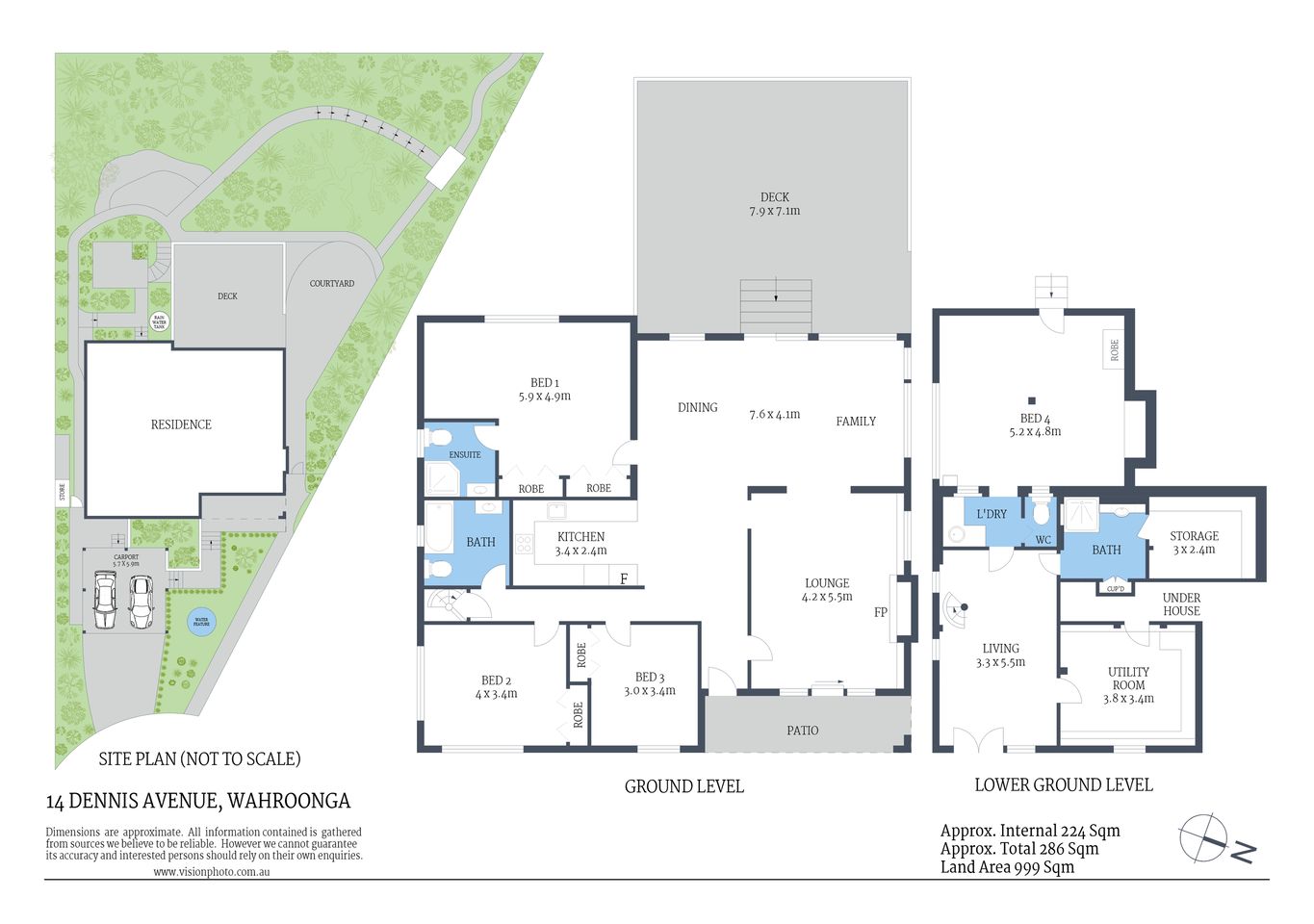
Nestled gracefully at the end of a cul-de-sac on a private 999sqm, this stunning double brick home presents harmonious family living across two levels. Charmed by character and classically elegant, the home seamlessly integrates formal and informal living, delightfully large rooms, and high ceilings on the main floor. Set amongst a stunning green backdrop, the property features an expansive entertaining deck creating a tranquil and serene oasis. Modern day functionality is assured with a flexible lower level to accommodate separate living, 4th bed, bath and multiple utility and storage rooms ideal for teens, multi-generational families and/or a home office. Its peaceful locale is a short stroll to bus services, moments to the village, Warrawee, and Wahroonga Station and within the Warrawee Public School catchment.
- Substantial formal lounge room, custom joinery around gas fireplace
- Spacious open plan dining, living and kitchen with plantation shutters
- Timber floorboards, high ceilings, 4 large bedrooms all with robes
- Renovated and fully tiled bathroom with bath and heated towel rails
- Master is decadently over-sized with robe, chic ensuite & sitting area
- Centrally located modern stone kitchen with gas oven and cooktop
- Expansive outdoor entertaining area with stunning green backdrop
- Garden pathways, established front garden with water fountain and lighting
- Substantial utility and storage rooms, laundry, separate access to lower level
- Flexible lower-level living, bath and bed suitable for teens, family or home office
- Double brick construction, double carport, ducted A/C, water tank
14 Dennis Avenue Wahroonga




















