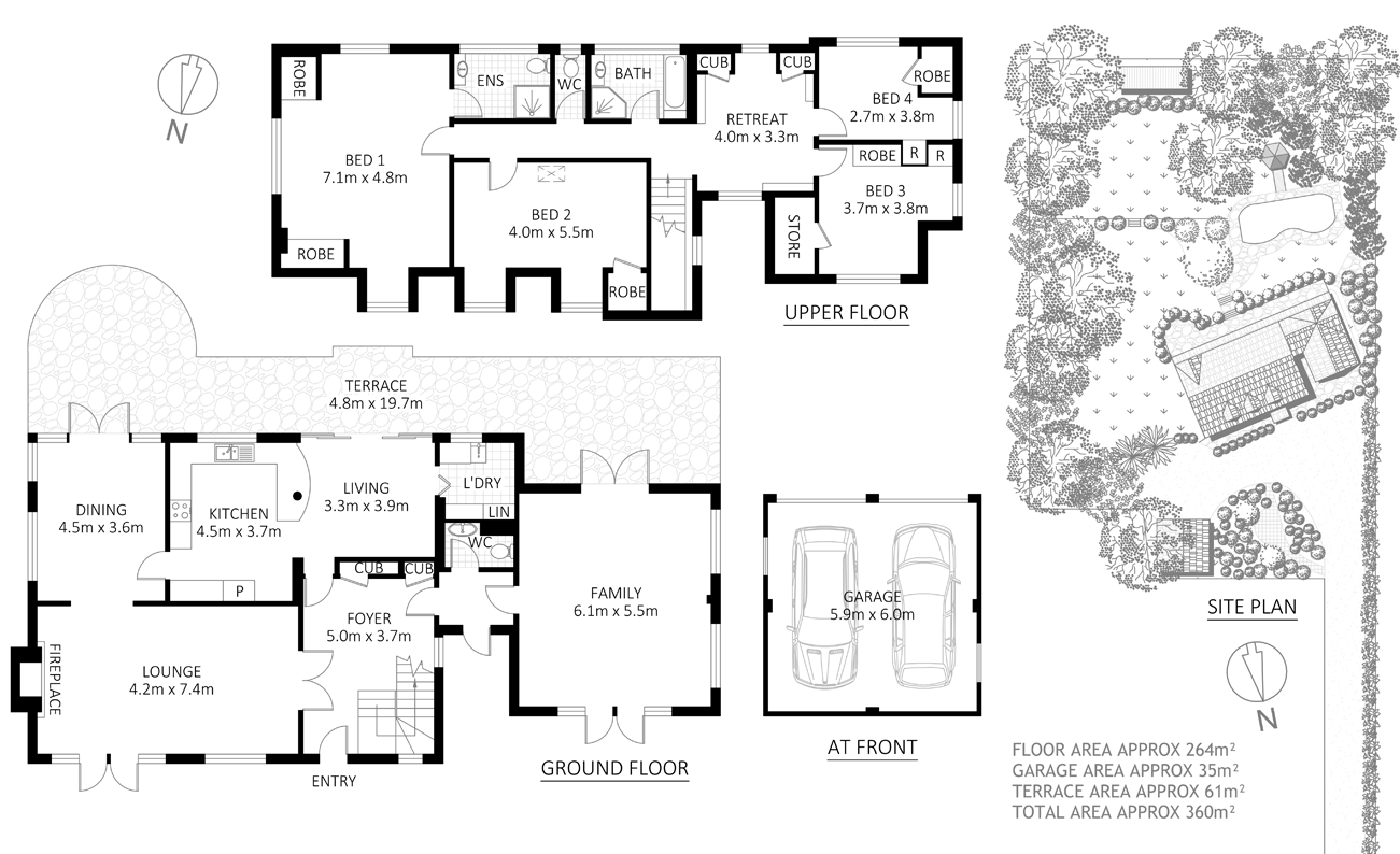
Nestled on over 2,580sqm of beautifully manicured gardens adjacent to Clive Evatt Reserve, this charming residence is a truly hidden oasis. Accessed via a camellia-lined private driveway and perfect for families of every stage, its picturesque parkland setting is literally footsteps to everything this sought after east side address has to offer. Picture-postcard pretty, with every window designed to embrace its stunning garden surrounds; this is a rare offering within a tightly held upper North Shore locale. Framed by a sparkling in-ground pool, sandstone terraces, poolside cabana and sprawling lawns, from here it's an easy commute to the area's leading schools with buses, village shops, cafés and restaurants close at hand.
- Flexible layout offers both relaxed and formal light-filled entertaining
- Prime sun drenched aspect basking in wraparound park-like private gardens
- Inviting family living extends to both front and rear alfresco settings
- Spacious well-equipped kitchen with an abundance of storage/pantry space
- Oversized master suite, original Kauri Pine floors and ducted gas heating
- Secluded sandstone-framed gas heated pool and cabana with reserve backdrop
- Vast child-friendly lawns, exquisite gardens, plentiful off-street parking
- Quiet leafy locale idyllically set adjacent to protected council parkland
- Stroll to Eastern Road shops, Wahroonga PS and Turramurra Memorial Park
- Footsteps to city/station buses with easy access to elite private schools
99 Burns Road Wahroonga















