Exuding effortless character, warmth and timeless appeal, this beautifully presented full brick home is a genuine haven certain to see a growing family enjoy years of wonderful memories. It's set on the high side of one of Wahroonga's most desirable streets & surrounded by immaculate landscaped gardens. The property is nestled on a superb 940 sqm block, moments from station bound buses, village shops, delightful local cafes, neighbourhood parks and highly sought after schools.
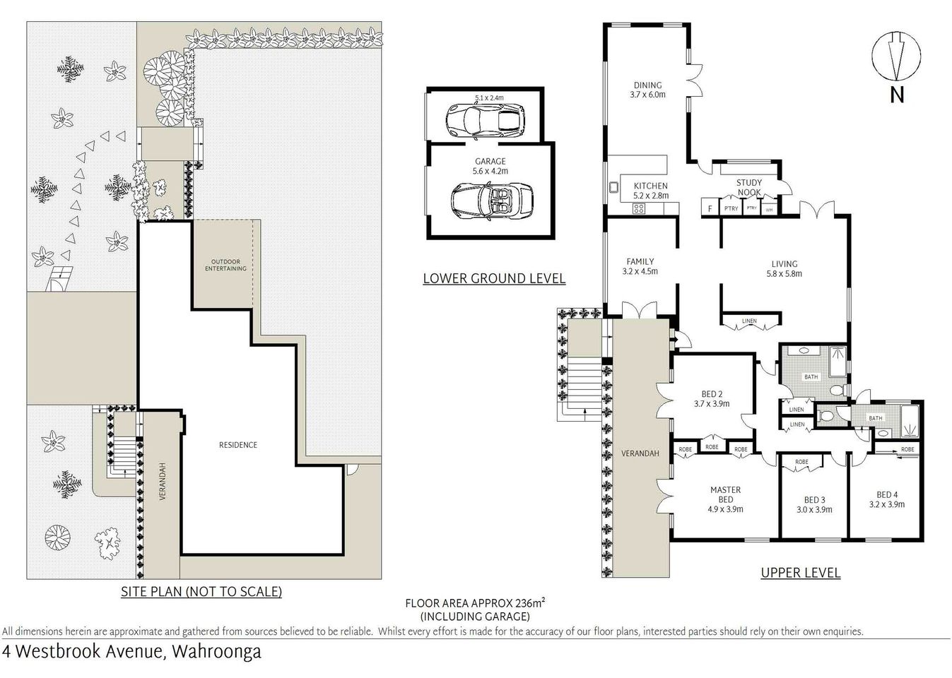
- Bright interiors deliver a fantastic choice of flexible living zones with easy outdoor flow
- French doors from dining room walk onto sunlit alfresco area set beneath an open pergola
- Beautiful expanse of level child friendly lawn steps down to landscaped garden frontage
- Large modern stone crafted kitchen reveals quality appliances and abundant storage
- Four generous bedrooms, new fully tiled main bathroom has underfloor heating
- Sleek second bathroom, high ceilings, mix of carpet/timber floors, double lock garage
This property is available for private viewing, and may also advertise an open time. All necessary measures have been put in place to adhere to the recent Government regulation and to protect the health and safety of all parties. For more information please contact the listing agent.
4 Westbrook Avenue Wahroonga

















