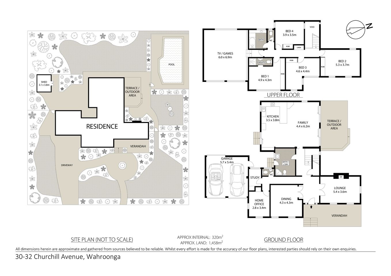
Commanding an impressive 1580 square metre parcel set over two titles, this large family home is well positioned only minutes' walk to Waitara Public School, other elite private schools, Wahroonga Village and Wahroonga railway station. Offering scope for redevelopment (STCA) the home sits surrounded by established landscaped gardens, with a very private sun dappled backyard with a prized north-west aspect.
- Two Titles 790sqm for each block
- 5 Bedrooms, Master Bedroom with en-suite and plenty of built-in wardrobes
- Formal lounge with fireplace
- Formal dining
- Home office and separate study
- Good sized kitchen with dining and lounge flowing to the outside
- Ducted air-conditioning and alarm system
- Huge rumpus area
- Paved entertaining area overlooking the north facing pool
30-32 Churchill Avenue Wahroonga















