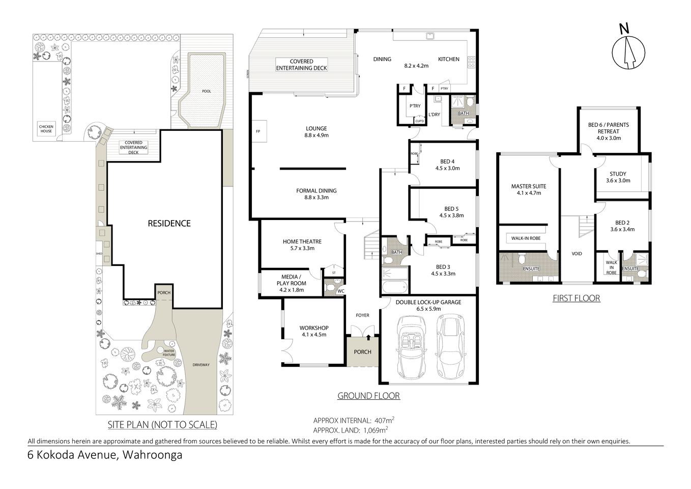
Perfectly designed for large family living and entertaining, this immaculately presented residence reveals fully renovated interiors across two luxurious levels. With exceptional proportions throughout there's ideal flexibility of spaces enhanced by seamless connection to an enviable north facing backyard oasis, certain to provide endless fun across the summer. The property graces a substantial 1,069sqm level block, moments to station bound buses, neighbourhood cafes and dining, parks, St Ives Shopping Centre and sought after schools.
- Full brick ground floor with welcoming entry foyer, polished concrete floors and stunning timber feature wall
- Palatial integrated living zone reveals Heat and Glo fireplace and expansive stacker doors
- Vergola covered entertaining deck overlooks private landscaped garden and pool
- Massive stone top kitchen has premium European gas appliances and Smeg wine fridge
- Six large bedrooms, three with ensuite, Study with custom cabinetry, versatile media room
- Air conditioning throughout, high ceilings, CCTV and automatic double lock up garage
6 Kokoda Avenue Wahroonga
















