This property is available for private viewing, and may also advertise an open time. All necessary measures have been put in place to adhere to the recent Government regulation and to protect the health and safety of all parties. For more information please contact the listing agent.
Peacefully nestled in a quiet cul de sac setting, this spacious home harmoniously incorporates its natural setting with its light filled interiors and comfortable contemporary living. It offers quality finishes throughout with modern kitchen, timber floors and a great flow to outdoor entertaining featuring expansive decking overlooking grassed yard and a beautiful bush land vista. The property is minutes walk to bus and in the Thornleigh West Public School catchment.
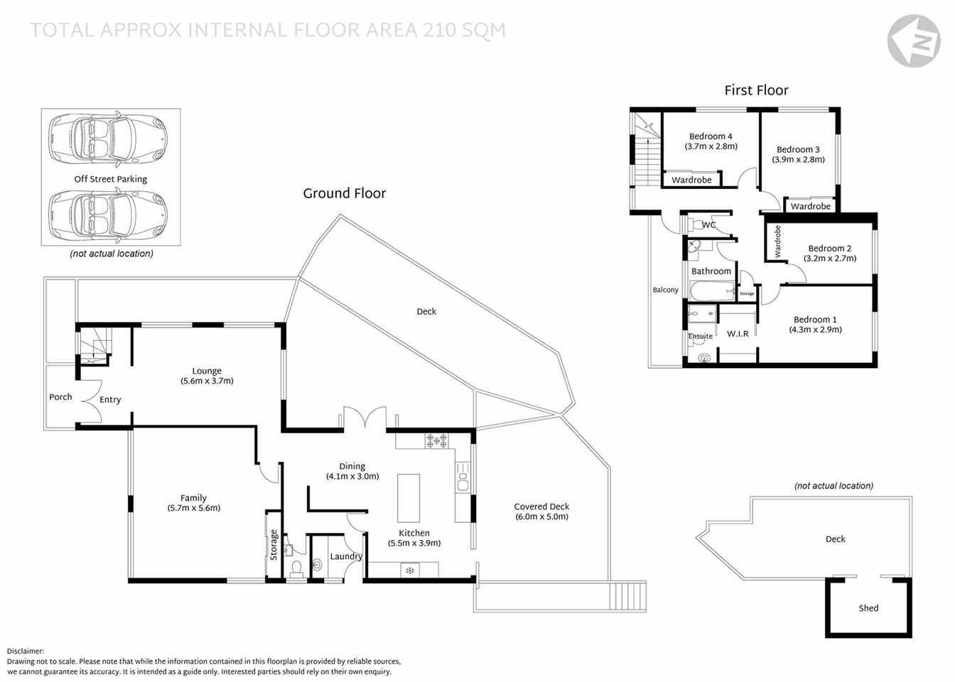
- Balcony with leafy outlooks, covered timber decking suits alfresco meals and entertaining
- Sleek stone finished kitchen features island bench and adjoins dining area
- Open main living captures views with slow combustion wood fire
- Large separate family room or home office
- Master bedroom with walk in robe and ensuite
- Additional 3 bedrooms with built ins
- Main bathroom plus additional downstairs WC
- Sunny aspect with lawn areas
- Quiet cul de sac setting, 860sqm block
8 Howes Close Westleigh

















