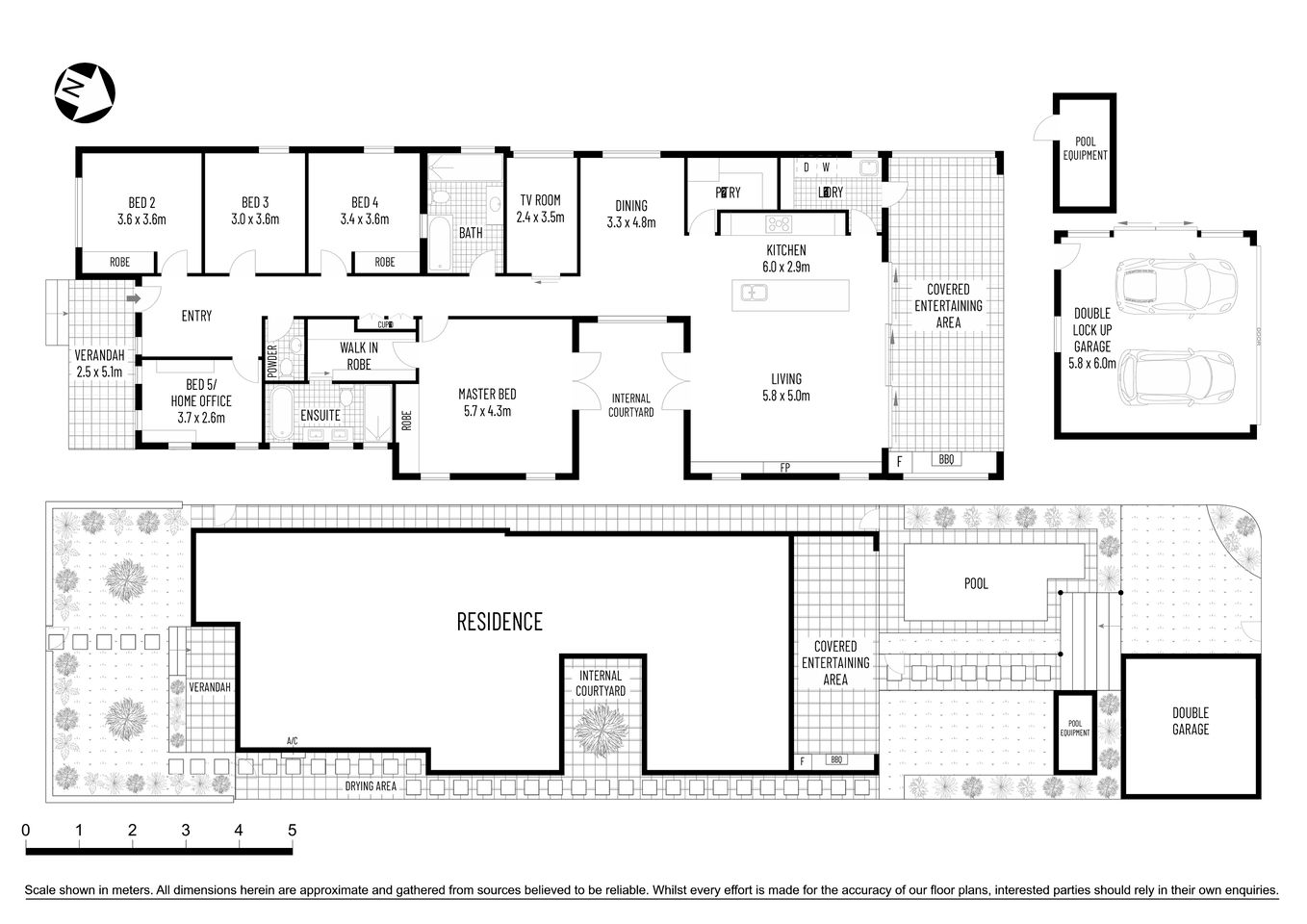
The brief to architects Sydesign was to create a luxury family focused home over a spacious single level with all the extras and an abundance of class. Showcasing a comprehensive remodel and extension of its classic bungalow frame, the result is a faultless arrangement and a superb entertainer's home across a custom designed floor plan. The attention to detail is impressive in every facet of its creation from its luxury kitchen and central Zen courtyard to its romantic master suite and north facing alfresco space with pool. Enjoy premium living steps to the bus, High Street Cafes, Willoughby Park, Chatswood Central and within the Willoughby Schools catchment area.
- Full brick, high ceilings, timber floors, home office/5th bed
- Set on an impressive 606.3sqm with north facing gardens
- Sweeping living and dining, gas fireplace, retractable wall of glass
- Large alfresco terrace, outdoor kitchen, central courtyard garden
- Northerly to rear, level lawns, heated pool, easy rear lane access DLUG
- Marble and Corian island gas kitchen, multizone a/c, surround sound
- TV room, large beds, stunning master with ensuite and custom WIR
This property is scheduled to go to Auction onsite. Only registered bidders are to participate either in-person or through our online Auction platform where you can bid and or watch the Auction. If you intend on registering, please contact the agent to discuss proceedings.
This property is available for private viewing, and may also advertise an open time. All necessary measures have been put in place to adhere to the recent Government regulation and to protect the health and safety of all parties. For more information please contact the listing agent.
21 Rosewall Street Willoughby



























