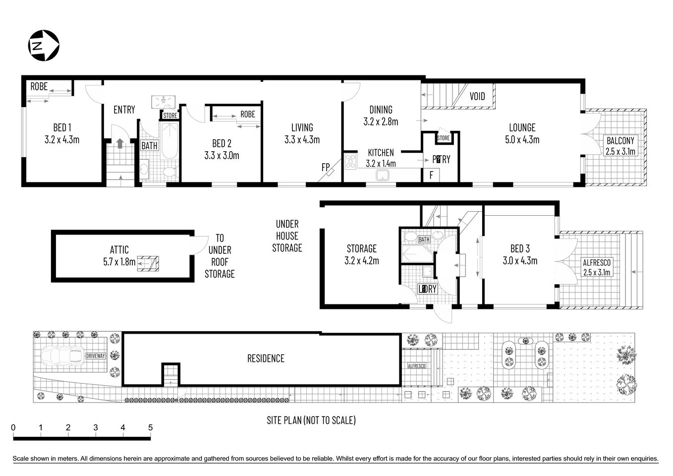
Positioned high to catch the breeze and the light from its north to rear aspect, this character rich semi combines a premier village-side setting with thoughtfully renovated interiors that are ideal for modern life. The double brick home boasts dual living zones, upper and lower alfresco decks and a lower level bedroom suite that is ideal for older children, the in-laws or guests. Original features add charm and appeal, carefully restored to their former beauty. The residence sits on a generous block with plenty of space for the pets and kids to play, just 190m to village shops and cafes, a stroll to city express bus services and walking distance to Willoughby Girls and Willoughby Public School.
- Solid double brick, high ceilings, timber floorboards, Ventis system
- Central lounge with original brick fireplace, gas point, casual dining
- Sleek timber topped gas kitchen, freestanding Smeg cooker, laundry
- Butler’s pantry, alfresco deck with green views, generous beds, BIRS
- Lower level bedroom with external entry and adjoining bathroom
- Renovated main bath, attic, terraced back gardens, single car space
This property is scheduled to go to Auction onsite. Registered bidders will be given priority to attend the auction before spectators due to potential social distancing requirements. If you intend on registering, please contact the agent to discuss proceedings.
This property is available for viewing by either attending the scheduled open homes or by private viewing should this be your preference. All necessary measures have been put in place to adhere to the recent Government regulation and to protect the health and safety of all parties. For more information please contact the listing agent.
15 Borlaise Street Willoughby



















