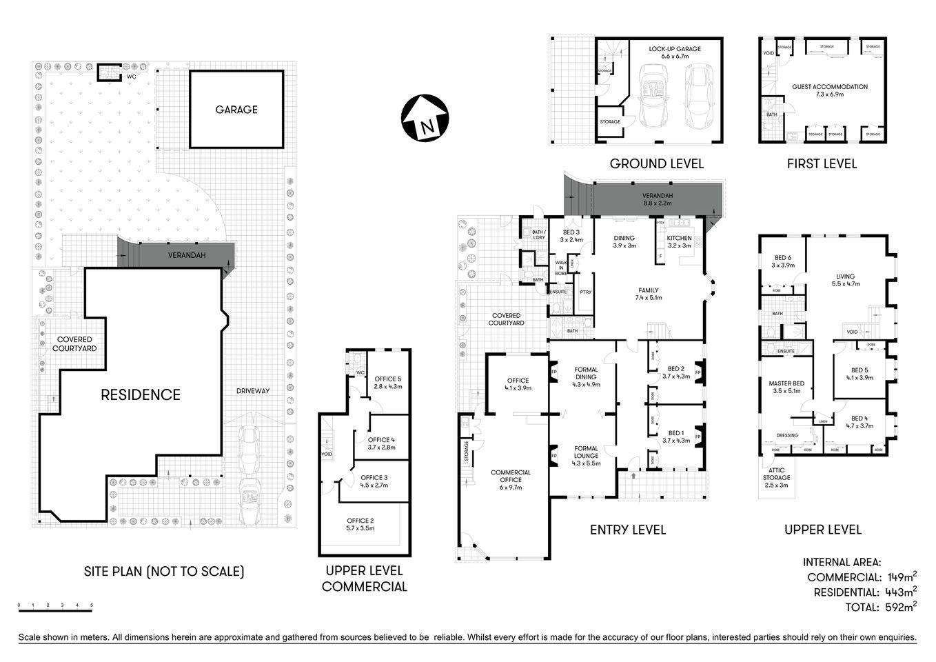
Set over 2 lots this prized North to rear home is on a level 1,062sqm of land. This grand Victorian residence "St Elmo" offers an outstanding investment opportunity with endless possibilities to work/live from home. Elegant chequered marble hallway with soaring ceilings leads to generous formal living and dining rooms. Newly renovated throughout for luxurious family lifestyle and entertaining. Beautifully landscaped gardens with lush sundrenched lawns and tall hedges for absolute privacy. Generous two-storey commercial shopfront and four offices. Conveniently located just a short stroll from schools, High St village shops and express transport.
- Flexible design offers three living spaces plus formal and casual dining
- Travertine terraces, classic verandah and lush private lawn for entertaining
- Large gourmet CaesarStone gas kitchen with breakfast bench and servery window
- Master with ensuite and dressing room, good sized bedrooms with built-ins
- Newly renovated bathrooms and quality timber floorboards upstairs
- Air conditioning, plentiful storage, dedicated pantry, laundry with shower facilities
- Self-contained studio with wet bar, bathroom and private entrance
- Security gates for off-street parking plus double lock-up garage
- Moments to Chatswood shopping centres and 7 km to CBD
- Just 150 metres to Willoughby Public School and Willoughby Girls High School
- Ultra-convenient location, stroll to city/Chatswood buses, local shops and cafes
This property is scheduled to go to Auction privately onsite. Only registered bidders are to participate either in-person or through our online Auction platform where you can bid and or watch the Auction. If you intend on registering, please contact the agent to discuss proceedings.
This property is available for private viewing, and may also advertise an open time. All necessary measures have been put in place to adhere to the recent Government regulation and to protect the health and safety of all parties. For more information please contact the listing agent.
27-29 Laurel Street Willoughby

























