

















Unit 4/44-46 Bowral Road, Mittagong
Townhouse | Listed 15 March 2026$650 pw
Price2
Beds2
Bath1
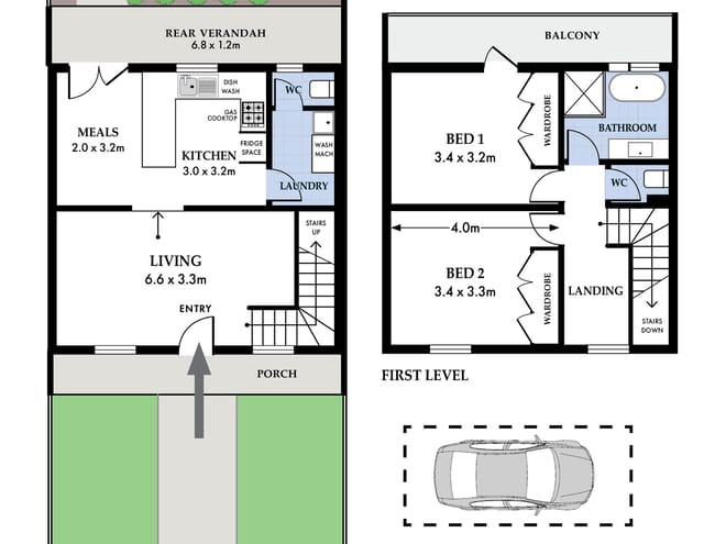
CarsThis charming and newly renovated townhouse is quietly positioned away from the main road, accessed by the rear lane - Regent Street. The perfect opportunity for side-by-side family living with two townhouses available separately, ideal for families looking to live close together. Offering updated fittings and fixtures throughout, with near new kitchen, bathroom and flooring. Situated in a central location within walking distance to local shops, parks and transport. Very well-maintained complex of five townhouses with shared open space lawn & BBQ area.
- Spacious separate living room with corner study nook
- As new kitchen with dishwasher, gas cooking and ample storage space
- Open plan & light filled dining opening onto sunny rear yard
- Two great size bedrooms upstairs, both with built-in wardrobes
- Spacious bathroom offering both bath and shower
- Internal laundry with additional powder room
- Single carport allocated parking space, plus additional shared parking
- Sunny front and rear courtyards
In the interest of protecting our tenants against leaking of any personal data, please only pay your holding deposit to our agency upon receiving approval from DiJones Real Estate. You will then receive a remittance, in the form of a trust account receipt, from DiJones to confirm receipt of your deposit.
Unit 4/44-46 Bowral Road Mittagong






