













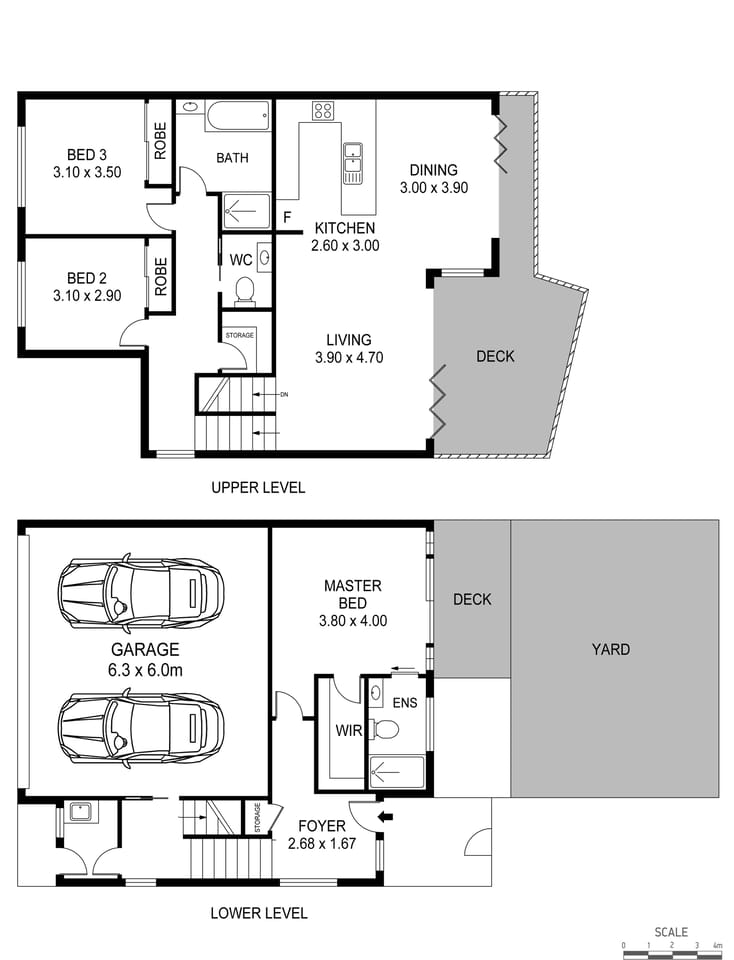
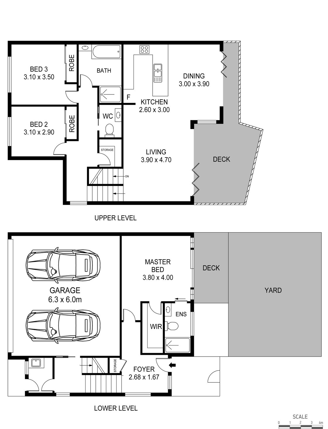
This beautifully appointed three-bedroom townhouse provides executive living to immerse yourself in the Terrigal Lifestyle. With its North facing aspect, easy level walk to the beach, shops, restaurants and cafes it could be ideal for your next home. Thoughtfully designed & sprawling over three spacious levels offering an abundance of light, timber flooring and an easy and relaxing open floor plan.
Features include:
- Sun drenched open plan living, dining and kitchen with stainless steel appliances and dishwasher
- Bi-fold doors from the air-conditioned living area allow a seamless flow to the entertaining area
- Three spacious bedrooms with air conditioning & built-in robes
- Walk in robe and ensuite to the master with access to private courtyard
- Double lock up remote garage with internal access, internal laundry
- Low maintenance courtyard with entertaining area and outdoor shower
In the interest of protecting our tenants against leaking of any personal data, please only pay your holding deposit to our agency upon receiving approval from DiJones Real Estate. You will then receive a remittance, in the form of a trust account receipt, from DiJones to confirm receipt of your deposit.
Unit 1/56-58 Havenview Road Terrigal





