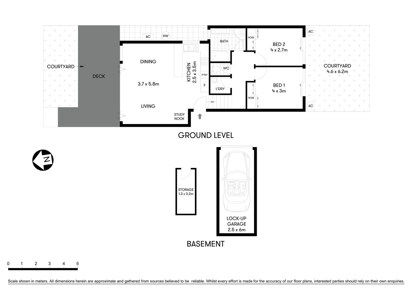
Showcasing an impressive 167sqm on title, this pet-friendly garden apartment reveals an immaculate renovation for a north facing indoor/outdoor lifestyle. The dual level layout features an open living space which flows through bi-fold glass doors onto a well crafted timber deck and lawn. It's serviced by a stone kitchen equipped with quality appliances and a breakfast bar for casual meals. Well located, this retreat is within walking distance of both Cammeray village shops and North Sydney CBD.
- Top floor bedrooms appointed with built-ins open onto large sunlit courtyard
- Contemporary dual oriented bathroom fitted with underfloor heating
- Highlights include air conditioning, internal laundry, separate w/c, intercom
- Single lock-up garage plus additional storage room set in basement car park
- Positioned quietly to the rear of a secure well maintained apartment complex
- Well located within easy walking distance of multiple cafés and restaurants
This property is scheduled to go to Auction privately onsite. Only registered bidders are to participate either in-person or through our online Auction platform where you can bid and or watch the Auction. If you intend on registering, please contact the agent to discuss proceedings.
This property is available for private viewing, and may also advertise an open time. All necessary measures have been put in place to adhere to the recent Government regulation and to protect the health and safety of all parties. For more information please contact the listing agent.
7/370 Miller Street Cammeray













